Substantial country estate with rental history and big conversion potential.
Grade II listed Georgian manor with many original period features
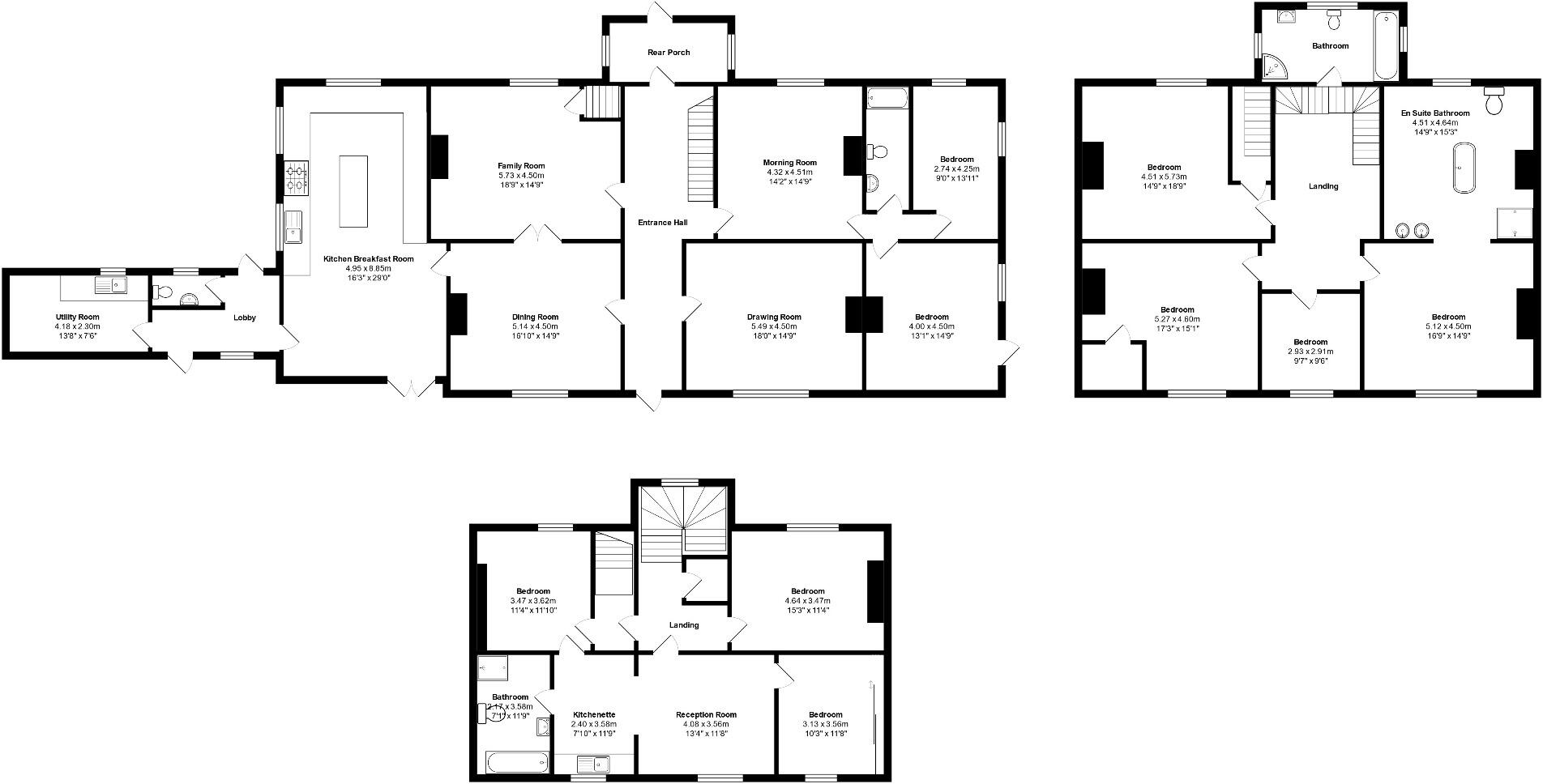
Set within about 3.5 acres of parkland, this Grade II listed Georgian manor offers over 4,700 sq ft of adaptable living space and immediate rental income as a successful holiday let. The house retains original period features — sash windows, high ceilings and feature fireplaces — across large reception rooms and nine substantial bedrooms, two en suite.
Accommodation is arranged over three floors and includes a generous kitchen/dining room, four principal reception rooms, ground-floor bedrooms with a wet room and a largely self-contained second floor with kitchenette and bathroom that could work as an annexe. A sweeping gravel drive and wide lawns provide substantial privacy and off-street parking.
Buyers should note the listed status will restrict alterations and can complicate repairs or extensions. The property uses LPG heating and a private septic tank; services and appliances have not been tested and a thorough survey is advised. Business rates currently apply due to the holiday-let use and the EPC is exempt for listed buildings.
This home suits an investor seeking an established holiday income or a family wanting a large country house with clear scope for further improvement. The combination of sizable grounds, conversion potential (former piggery frame to repurpose) and strong connectivity in a remote hamlet gives both lifestyle appeal and long-term value opportunity.
9 bedroom manor house for sale in Three Holes, Wisbech, Norfolk, PE14 — £1,500,000 • 9 bed • 3 bath • 4700 ft²
5 bedroom character property for sale in St. Peters Road, Upwell, Wisbech, PE14 — £550,000 • 5 bed • 3 bath • 2971 ft²
7 bedroom detached house for sale in Little London Road, Northwold, Thetford, Norfolk, IP26 — £3,000,000 • 7 bed • 3 bath • 6337 ft²
6 bedroom detached house for sale in St. Johns Lane, Beachamwell, Swaffham, Norfolk, PE37 — £1,000,000 • 6 bed • 4 bath • 5447 ft²
5 bedroom detached house for sale in Church Road, Leverington, Wisbech, Cambridgeshire, PE13 — £1,750,000 • 5 bed • 4 bath • 9229 ft²
4 bedroom detached house for sale in Fleet, PE12 — £800,000 • 4 bed • 3 bath • 3298 ft²






















































































































