Refined country living with stables and studio space on 2.5 acres.
Grade II listed Georgian house circa 1755, fully refurbished
An exceptional Grade II listed Georgian house freshly and comprehensively refurbished, Mill House combines period character with high-spec contemporary living. The property extends to about 3,298 sq ft and sits in a semi-rural plot of approximately 2.5 acres, including around 2 acres of grazing and a well-appointed stable block — ideal for equestrian owners or those seeking country living close to amenities.
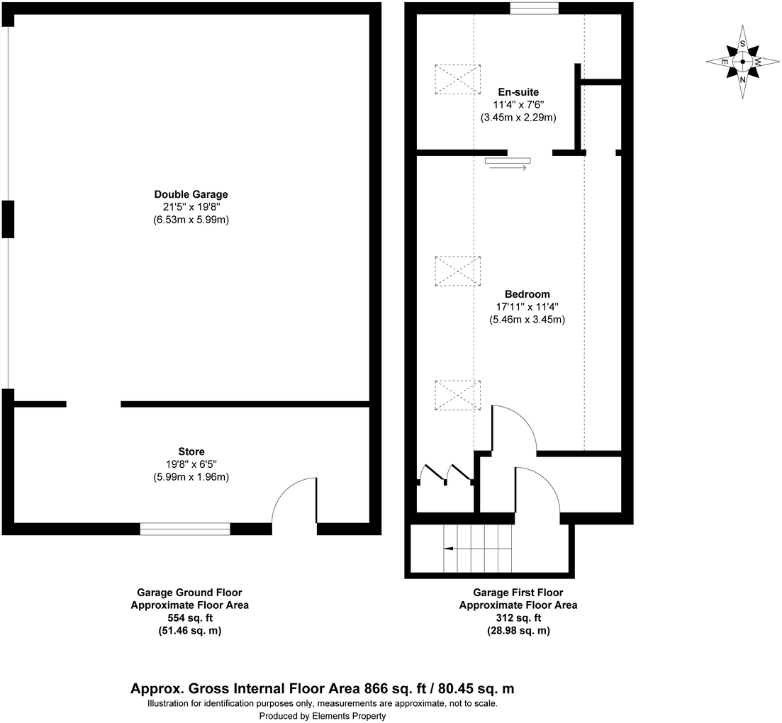
The rear extension delivers a spectacular, bespoke Tom Howley kitchen with premium Miele appliances, a wine cave, utility and a large open-plan dining/family room with glazed sliding doors to dual terraces. The layout includes two principal reception rooms, four double bedrooms (two en suites), a dressing room and a high-spec family bathroom; a studio room with shower sits above the detached double garage and could serve as an office or ancillary accommodation.
The refurbishment is meticulous: underfloor heating in new areas, a 2021 oil boiler with six heating zones, CAT5 wiring, CCTV and landscaped gardens with automatic gates and new timber-clad double garage. This is a largely turn-key proposition (furniture negotiable) for buyers who appreciate careful restoration paired with contemporary convenience.
Important considerations: the Grade II listing will restrict alterations and require listed-building consent for many works. The large plot and outbuildings demand ongoing maintenance and management. The property uses oil-fired heating (installed 2021) and is offered freehold at a reduced price of £800,000.
5 bedroom detached house for sale in Gedney, PE12 — £650,000 • 5 bed • 2 bath • 2869 ft²
7 bedroom detached house for sale in Manor House, Chapel Lane, Sibsey, PE22 — £995,000 • 7 bed • 5 bath
4 bedroom detached house for sale in North Drove, Quadring, Spalding, PE11 — £875,000 • 4 bed • 3 bath • 2152 ft²
4 bedroom detached house for sale in Marsh Road, Lutton Marsh, PE12 — £695,000 • 4 bed • 2 bath • 1540 ft²
4 bedroom detached house for sale in Seas End Road, MOULTON SEAS END, Spalding, PE12 — £377,500 • 4 bed • 2 bath • 1970 ft²
7 bedroom detached house for sale in Holbeach Hurn, PE12 — £750,000 • 7 bed • 4 bath • 4005 ft²






















































































































































