Chain-free family home between Penge and Sydenham with garden and extension potential.
Three double bedrooms across two floors
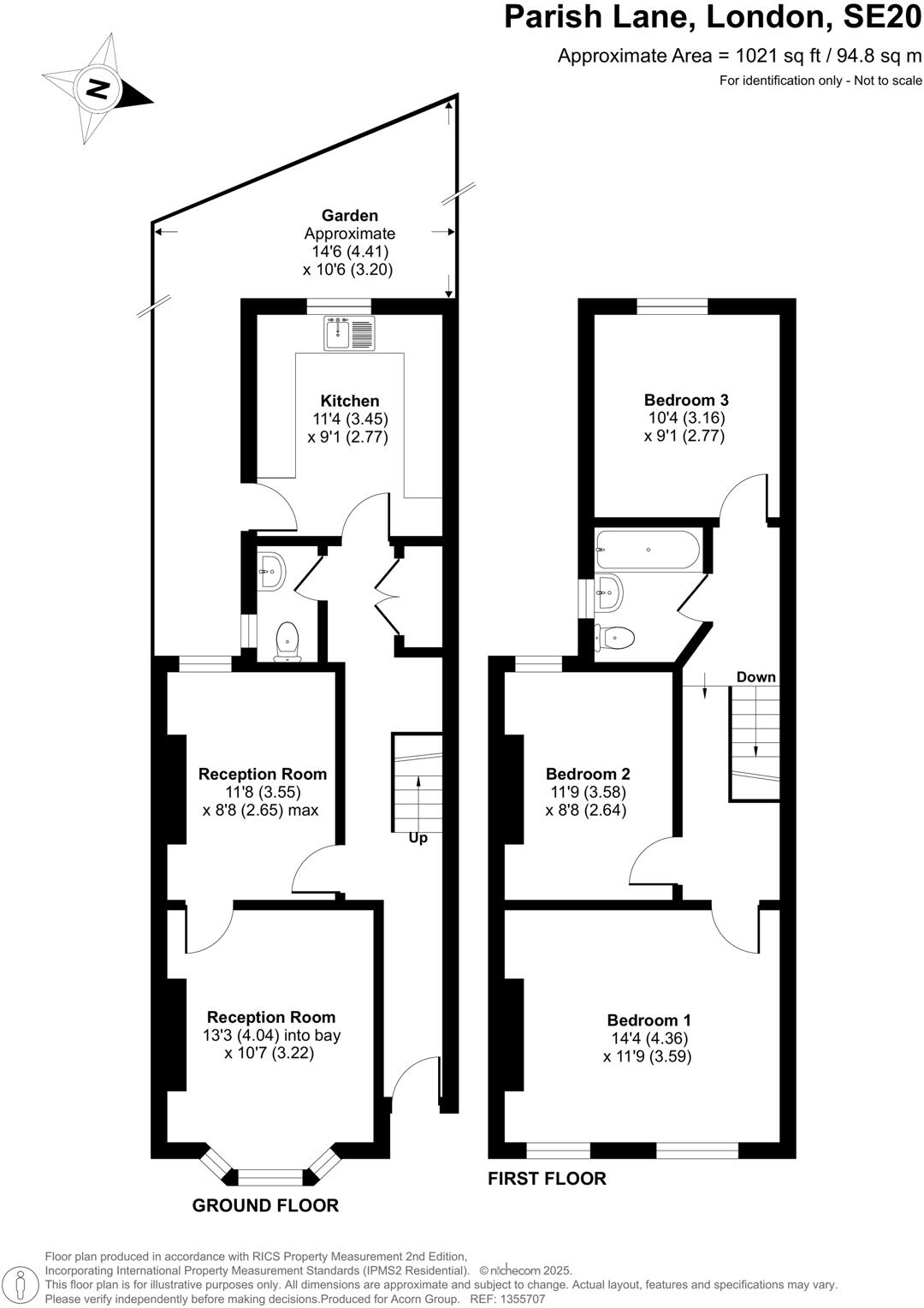
A bay-fronted three-bedroom home arranged over two floors, offering around 1,020 sqft of practical family living in SE20. Period features include high ceilings, a large front window and original fireplace, while a rear reception and kitchen open onto a private garden for outdoor use.
The house is offered chain free and sits between Penge and Sydenham, close to local high streets, parks and several well-rated primary and secondary schools — convenient for school runs and everyday errands. Transport links are good, with nearby stations and frequent buses into central London.
There is clear upside: the property has scope to extend (subject to planning permission) and will suit buyers who want to add value through upgrading and reconfiguration. Note the EPC rating of D, assumed solid brick walls with no built-in insulation, and a small rear plot; improvements to insulation and energy efficiency are likely required.
Practical details: gas central heating with boiler and radiators, double glazing fitted post-2002, freehold tenure and affordable council tax. The neighbourhood is lively and well connected, although local crime is above average, so buyers seeking maximum tranquillity should take that into account.
3 bedroom terraced house for sale in Parish Lane, London, SE20 — £750,000 • 3 bed • 1 bath • 1300 ft²
3 bedroom terraced house for sale in Parish Lane, Penge, London, SE20 — £550,000 • 3 bed • 2 bath • 1051 ft²
3 bedroom terraced house for sale in Crampton Road, London, SE20 — £650,000 • 3 bed • 1 bath • 950 ft²
3 bedroom house for sale in Provincial Terrace, Penge, London, SE20 — £500,000 • 3 bed • 1 bath • 888 ft²
3 bedroom terraced house for sale in Clevedon Road, London, SE20 — £700,000 • 3 bed • 1 bath • 1103 ft²
3 bedroom house for sale in Fairlawn Park, London, SE26 — £875,000 • 3 bed • 1 bath • 1160 ft²










































































