SE26 5SA - 3 bedroom house for sale in Fairlawn Park, London, SE26

View on Property Piper

3 bedroom house for sale in Fairlawn Park, London, SE26

Summary - 53 Fairlawn Park SE26 5SA

3 bed 1 bath House

Newly renovated, chain-free Victorian terrace with garden and extension potential (STPP)..
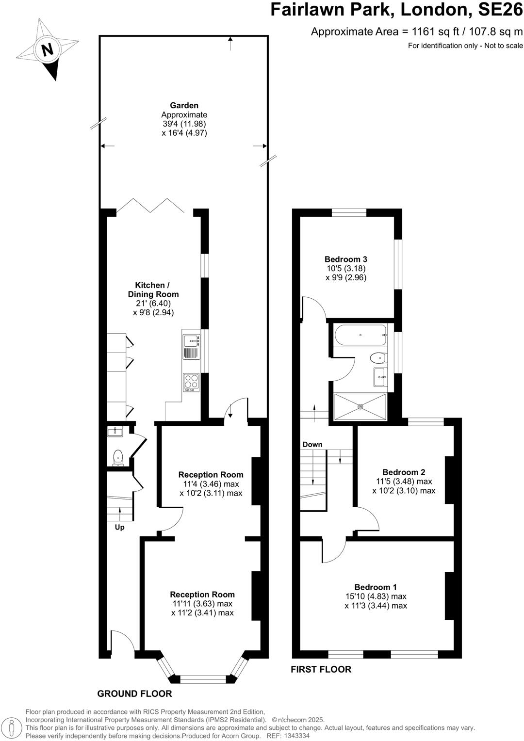
Chain free three-bedroom Victorian mid-terrace, approx. 1,160 sq ft
A newly renovated Victorian mid-terrace on a quiet Fairlawn Park street, this three-bedroom freehold home combines period character with contemporary finishes. At approximately 1,160 sq ft the layout offers a formal bay-front reception, open-plan kitchen/dining with patio doors, and a landscaped low-maintenance rear garden — ideal for family living and easy entertaining.

Finished to a high standard throughout, the property includes double-glazed sash windows, a modern gas boiler with radiators, integrated kitchen appliances and a four-piece family bathroom. Chain free and move-in ready, it will suit families and professionals seeking space, convenience and immediate occupation without major works.

Notable practical points: the property has solid-brick walls likely without cavity insulation, an EPC rating of E and only one bathroom for three bedrooms. The small plot limits garden size, and any internal reconfiguration or extension would require planning consent (STPP). Local area indicators show average crime and pockets of deprivation despite good commuter links and nearby well-rated schools.

Overall this house offers turn-key period living with scope to add value through sensible improvements or extension (subject to planning). For buyers prioritising character, transport access and an immediate, stylish home in SE26, it represents a compelling, chain-free opportunity.

Property Details

Image Descriptions

Floorplan Description

Rooms

Textual Property Features

Target Audience

AI Tags

Detected Visual Features

EPC Details

Nearby Schools

Nearest Bars And Restaurants

,,,,}

Nearest General Shops

,,}

Nearest Grocery shops

,,}

Nearest Supermarkets

,,}

Nearest Religious buildings

,,}

Nearest Medical buildings

,,,}

Nearest Airports

,,}

Nearest Leisure Facilities

,,,,}

Nearest Tourist attractions

,,}

Nearest Train stations

,,,,}

Nearest Bus stations and stops

,,,,}

Nearest Hotels

,,}

Tags

Local Market Stats

AirBnB Data

Similar Properties

Meta

High Res Images

Compatible Images

Low res Images

Thumbnails

Raw Images

High Res Floorplan Images

Compatible Floorplan Images

Low res Floorplan Images

FloorplanImages Thumbnail

Raw Floorplan Images