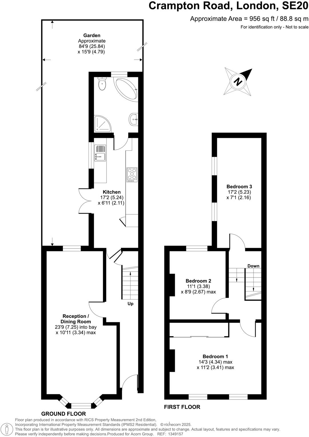
Large rear garden and scope to extend for growing families.
Three double bedrooms across two floors
Set within a well-connected SE20 location, this three-bedroom terraced house offers a generous 950–956 sqft layout and a long rear garden ideal for family life. The ground floor has separate reception and dining spaces plus a fitted kitchen, while three double bedrooms occupy the upper level. Period features and tall ceilings add character throughout.
The property sits between Penge West and Penge East stations for fast links to central London, and Crystal Palace Park is a short walk away — useful for weekend family time. Practical details include double glazing, a mains gas boiler with radiators, EPC rating C and freehold tenure. The house is in an inner-city, commuter-focused area with good local amenities and several highly rated schools nearby.
There is clear scope to extend subject to planning permission and the large garden (approx. 80ft) supports that potential. Buyers should note only one bathroom and a relatively small plot. Crime levels are reported above average for the immediate area, and the home will suit purchasers wanting to modernise or reconfigure to better suit growing-family needs or to add value.
3 bedroom terraced house for sale in Bargrove Close, London, SE20 — £550,000 • 3 bed • 1 bath • 968 ft²
3 bedroom terraced house for sale in Parish Lane, Penge, London, SE20 — £550,000 • 3 bed • 2 bath • 1051 ft²
3 bedroom terraced house for sale in Percy Road, Penge, Bromley, London, SE20 — £650,000 • 3 bed • 1 bath • 1300 ft²
2 bedroom terraced house for sale in Sycamore Grove, London, SE20 — £425,000 • 2 bed • 1 bath • 642 ft²
3 bedroom terraced house for sale in Whateley Road, London, SE20 — £650,000 • 3 bed • 1 bath • 963 ft²
4 bedroom house for sale in Westmoreland Terrace, Penge, London, SE20 — £650,000 • 4 bed • 2 bath • 1270 ft²






































































