Chain-free mid-century family home with extended kitchen and off-street parking..
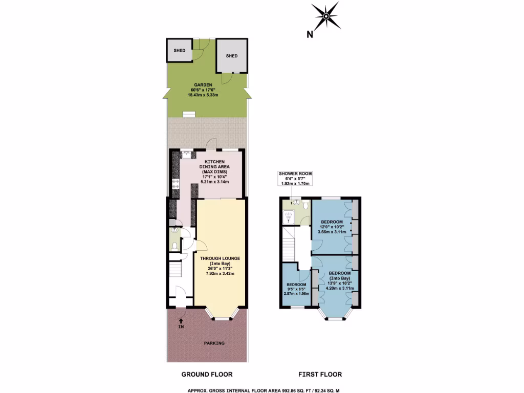
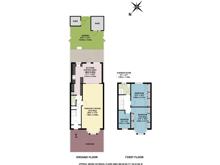
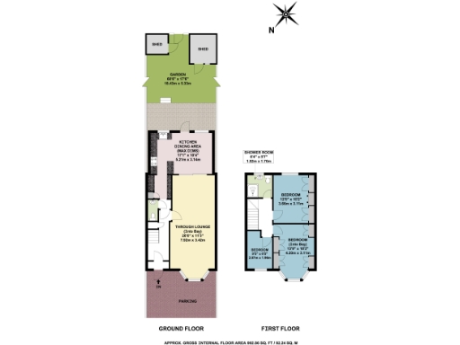
Full-width kitchen/breakfast extension linking to garden
Recently refitted shower room; ground-floor cloakroom/WC included
South-east facing rear garden with patio and two sheds
Off-street parking to the front; white goods included
Double glazing and gas central heating (boiler and radiators)
Sold at auction, freehold and chain-free — be aware of auction terms
Mid-terrace 1930s build with solid brick walls; no known cavity insulation
Living room retains dated 1960s/70s finish; may need modernisation
A practical three-bedroom mid-terrace offering comfortable family living close to Horsenden Primary School and local shops. The full-width fitted kitchen/breakfast-room extension creates an open ground-floor family space that flows to a south-east facing garden with patio — ideal for morning sun and child-friendly outdoor time.
The house has been recently refreshed with a refitted shower room, ground-floor cloakroom, double glazing and gas central heating; white goods in the kitchen are included. Off-street parking at the front and good access to Sudbury Hill (Piccadilly) and Greenford (Central) stations make commuting straightforward.
Buyers should note this is a freehold property sold at auction and offered chain-free. The home is mid-century in origin with solid brick walls (no known cavity insulation) and some interiors — notably the living room — show dated 1960s/70s features that may benefit from modernization. The plot is modest in size.
Overall this is a ready-to-move-in family home with scope to add value through cosmetic updating and potential insulation improvements. Its location, parking and recent bathroom/kitchen improvements make it attractive for families and first-time buyers seeking convenience and long-term potential.
3 bedroom house for sale in Canterbury Close, Greenford, UB6 — £400,000 • 3 bed • 1 bath • 876 ft²
3 bedroom end of terrace house for sale in Whitton Avenue East, Greenford, Middlesex, UB6 — £645,000 • 3 bed • 2 bath • 1042 ft²
3 bedroom terraced house for sale in Horsenden Lane North, Greenford, Middlesex, UB6 — £560,000 • 3 bed • 2 bath • 1109 ft²
3 bedroom terraced house for sale in Hadden Way, Greenford, Middlesex, UB6 — £515,000 • 3 bed • 1 bath • 839 ft²
3 bedroom end of terrace house for sale in Ennismore Avenue, Greenford, Middlesex, UB6 — £535,000 • 3 bed • 1 bath • 925 ft²
3 bedroom end of terrace house for sale in Whitton Avenue East, Greenford, Middlesex, UB6 — £539,950 • 3 bed • 1 bath • 861 ft²


























































