**Standout Features:**
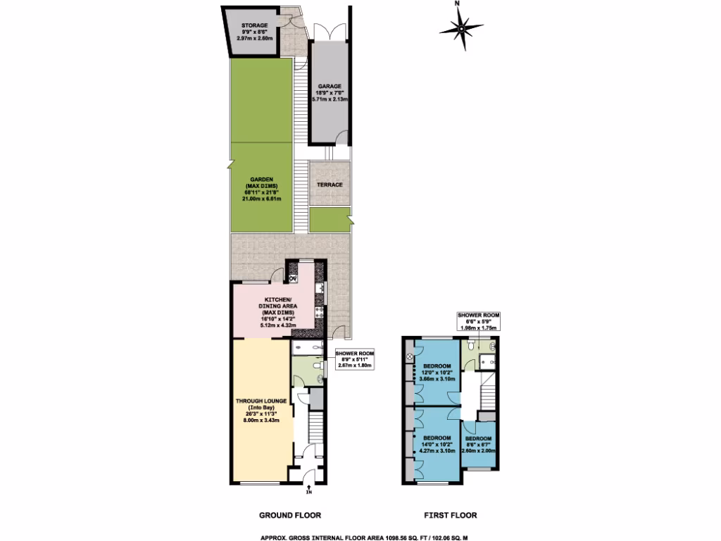
- Three-bedroom end-of-terrace house built in the 1930s.
- Recent improvements include a fitted kitchen/breakfast room extension and ground floor shower room/WC.
- Fitted wardrobes in all bedrooms, enhancing storage solutions.
- Gas central heating and double glazing for energy efficiency.
- Brick-built garage with direct access, plus a generous garden area.
- Proximity to local amenities, schools, and public transport (Horsenden Primary School and Sudbury Hill Station).
**Summary Description:**
Discover this charming three-bedroom end-of-terrace home, perfectly positioned to offer expansive views across West London. Spanning approximately 1,042 square feet, this residence boasts a spacious through lounge and a welcoming kitchen/breakfast area—ideal for vibrant family gatherings. Each bedroom features fitted wardrobes, ensuring ample storage for all your needs. The brick-built garage provides practical parking or storage options, complemented by a good-sized garden for outdoor enjoyment.
Located just a stone’s throw from local schools rated ‘Good’ and ‘Outstanding’, this property caters to families seeking educational opportunities within a young, multicultural community. With fast broadband and excellent mobile signal, it's also well-suited for remote work or connectivity needs. While the house is beautifully presented, it retains a few period features that might benefit from modern updates, allowing you the chance to personalize your space further. Enjoy the convenience of nearby amenities and transport links—this is a fantastic opportunity for family-oriented buyers looking to settle in a vibrant area. Don't miss this chance to call this comfortable and inviting home yours!
3 bedroom terraced house for sale in Whitton Avenue East, Greenford, UB6 — £568,000 • 3 bed • 2 bath • 1014 ft²
3 bedroom semi-detached house for sale in Ashness Gardens, Greenford, Middlesex, UB6 — £635,000 • 3 bed • 1 bath • 1090 ft²
3 bedroom end of terrace house for sale in Whitton Avenue East, Greenford, Middlesex, UB6 — £539,950 • 3 bed • 1 bath • 861 ft²
3 bedroom semi-detached house for sale in Oakwood Crescent, Greenford, Middlesex, UB6 — £650,000 • 3 bed • 1 bath • 1126 ft²
3 bedroom semi-detached house for sale in Oakwood Crescent, Greenford, Middlesex, UB6 — £610,000 • 3 bed • 1 bath • 921 ft²
3 bedroom terraced house for sale in Maybank Avenue, Wembley, Middlesex, HA0 — £500,000 • 3 bed • 1 bath • 1046 ft²


































































