UB6 0DH - 3 bedroom terraced house for sale in Hadden Way, Greenford,…

View on Property Piper

3 bedroom terraced house for sale in Hadden Way, Greenford, Middlesex, UB6

Summary - Hadden Way, Greenford, Middlesex, UB6 UB6 0DH

3 bed 1 bath Terraced

**Standout Features:**
- Attractive 1930s mid-terrace house
- 3 spacious bedrooms with ample natural light
- Well-maintained west-facing rear garden
- No upper chain, ensuring a quick move-in process
- Gas central heating and double glazing for energy efficiency
- Convenient location near transport links and local amenities
- Close to several primary schools with good Ofsted ratings

**Potential Concerns:**
- Solid brick walls with no insulation (assumed)
- Average size and condition of interior rooms

Discover this charming three-bedroom mid-terrace house, ideally located in the peaceful residential streets of Greenford. Perfect for families and young professionals alike, this property features a bright through reception room that seamlessly connects to a well-maintained west-facing garden, ideal for entertaining or simply unwinding after a long day. With gas central heating and double glazing, enjoy year-round comfort and energy efficiency.

Positioned just half a mile from key transport links and local shops, you'll find everything you need within easy reach. Families will appreciate the proximity to highly rated primary schools and spacious local parks. The property is offered chain-free, presenting a unique opportunity to settle into a serene neighborhood quickly. Act fast to secure this attractive home—opportunities like this don't last long!

Property Details

Brochure Descriptions

Image Descriptions

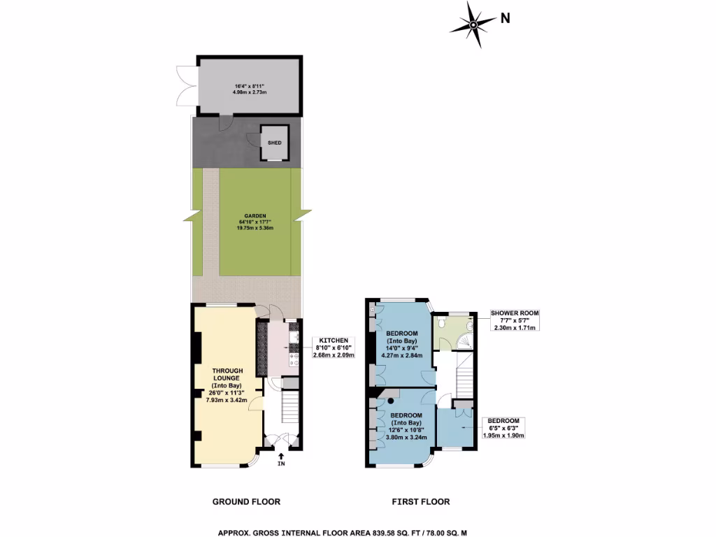
Floorplan Description

Rooms

Textual Property Features

Detected Visual Features

EPC Details

Nearby Schools

Nearest Bars And Restaurants

,,,,}

Nearest General Shops

,,}

Nearest Grocery shops

,,}

Nearest Supermarkets

,,}

Nearest Religious buildings

,,}

Nearest Medical buildings

,,,}

Nearest Airports

,}

Nearest Leisure Facilities

,,,,}

Nearest Tourist attractions

,,}

Nearest Train stations

,,,,}

Nearest Bus stations and stops

,,,,}

Nearest Hotels

,,}

Tags

Local Market Stats

AirBnB Data

Similar Properties

Meta

High Res Images

Compatible Images

Low res Images

Thumbnails

Raw Images

High Res Floorplan Images

Compatible Floorplan Images

Low res Floorplan Images

FloorplanImages Thumbnail

Raw Floorplan Images