Chain-free two-bed with outdoor access in sought-after inner-city location.
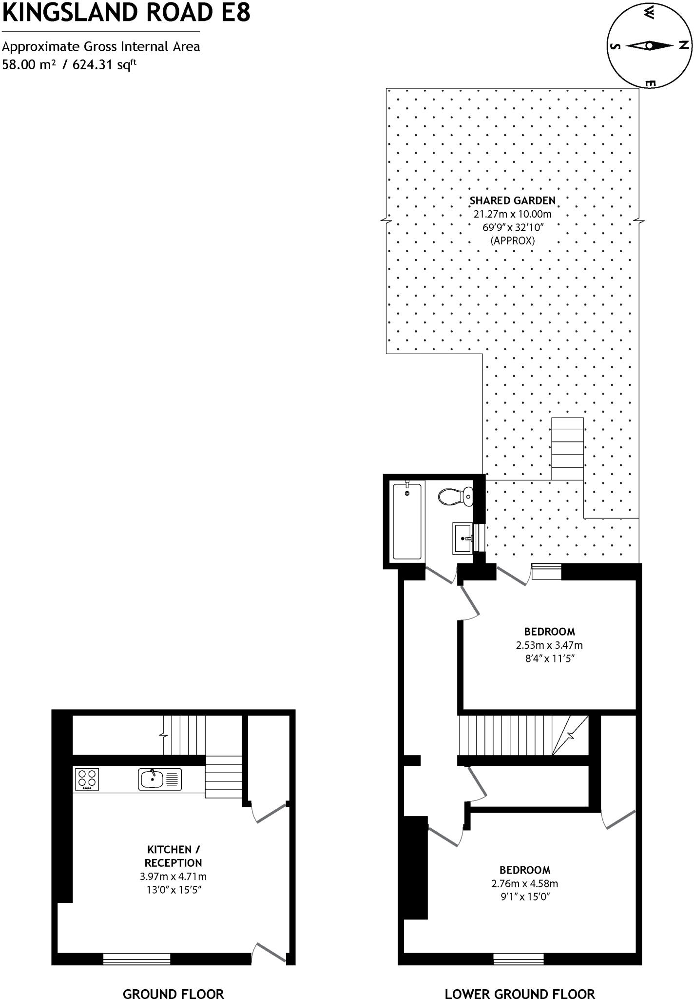
Two-bedroom split-level flat, 624 sq ft with private entrance
Chain free and 104 years remaining on the lease
Large communal garden; second bedroom has direct access
Open-plan reception and modern kitchen; well presented interior
Electric storage heating; likely limited wall insulation (solid brick)
Service charge approx £1,230 per year; ground rent £100
Located near Shoreditch and Upper Street; fast broadband
Area records higher crime levels; busy inner-city environment
This split-level two-bedroom flat occupies the ground and lower-ground floors of a Victorian mid-terrace on Kingsland Road. Offered chain free with a private entrance and 624 sq ft of accommodation, it blends a modern open-plan reception and kitchen with period exterior character. The principal bedroom and a second bedroom — which opens onto a large communal garden — suit first-time buyers seeking an urban home with outdoor space.
Practical details are straightforward: a 104-year lease, service charge around £1,230 per year and a small ground rent of £100. Heating is by electric storage heaters and the building’s solid brick construction likely provides limited wall insulation; this can mean higher running costs and potential upgrade work for comfort and efficiency.
The flat is well placed for city access and the vibrant bars, cafés and boutiques of Shoreditch and Upper Street. Local amenities and fast broadband make the location convenient for working professionals and nearby primary and secondary schools include several rated Good or Outstanding.
Buyers should note the area records higher crime levels and the property will suit those comfortable living in a busy inner-city setting. There is clear potential to improve thermal performance and lower bills with targeted insulation and heating upgrades, making this a sensible purchase for someone wanting a ready-to-move-in home with scope to add value.
2 bedroom flat for sale in Amhurst Road, Hackney, London, E8 — £575,000 • 2 bed • 1 bath • 860 ft²
2 bedroom flat for sale in Homerton High Street, London, E9 — £400,000 • 2 bed • 1 bath • 732 ft²
2 bedroom apartment for sale in Clarkson Street, London, E2 — £550,000 • 2 bed • 1 bath • 702 ft²
2 bedroom flat for sale in Sylvester Path, Hackney, London, E8 — £600,000 • 2 bed • 1 bath • 666 ft²
1 bedroom flat for sale in Weymouth Terrace, London, E2 8LR, E2 — £234,950 • 1 bed • 1 bath • 388 ft²
1 bedroom flat for sale in Chatsworth Road, London, E5 — £350,000 • 1 bed • 1 bath • 346 ft²










































































