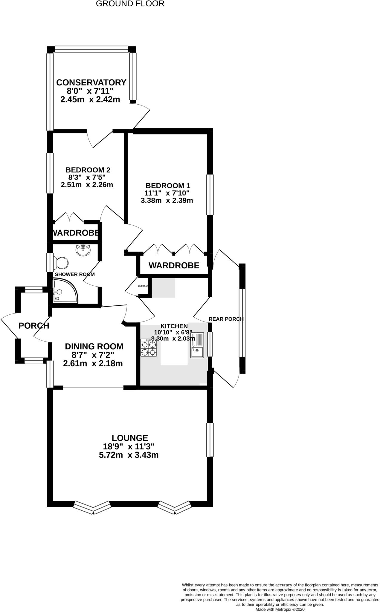
**Standout Features:**
- Newly renovated 2-bedroom bungalow in a peaceful village setting.
- Enhanced insulation, UPVC double glazing, and Calor gas central heating for energy efficiency.
- Modern kitchen with built-in appliances & ample storage space.
- Attractively landscaped low-maintenance garden, off-street parking for multiple vehicles.
- Minimum age restriction of 55 for residents.
**Summary:**
Discover this charming and modern 2-bedroom park home that has been beautifully renovated, nestled on the edge of the tranquil village of Winterborne Whitechurch. Offering a perfect blend of comfort and style, the home features enhanced insulation and UPVC double glazing, ensuring warmth and energy efficiency year-round. The spacious lounge is bathed in natural light, complemented by a stylish kitchen fitted with modern appliances. Enjoy your morning coffee in the delightful UPVC conservatory, which opens into a fully enclosed, low-maintenance garden complete with an ornamental pond and summer house.
The property's convenient off-street parking adds to its appeal, and the affordable council tax makes it a financially savvy choice for retirees or those seeking a peaceful retreat. Located within a friendly community atmosphere, you're just a stone's throw away from local amenities including a church and a pub, plus you're on a bus route connecting you to the charming towns of Blandford Forum and Dorchester. While there is a minimum age restriction of 55, this home stands out for those looking to settle into a safe and caring neighborhood. Act quickly to secure your dream retreat in this idyllic village location!
2 bedroom detached house for sale in Lady Bailey Residential Park, Winterborne Whitechurch, Blandford Forum, Dorset, DT11 — £142,500 • 2 bed • 1 bath • 600 ft²
2 bedroom detached house for sale in Winterborne Whitechurch, Blandford Forum, Dorset, DT11 — £159,950 • 2 bed • 1 bath • 507 ft²
2 bedroom park home for sale in Winterborne Whitechurch, Blandford Forum, Dorset, DT11 — £125,000 • 2 bed • 1 bath • 595 ft²
2 bedroom detached house for sale in Winterborne Whitechurch, Blandford Forum, Dorset, DT11 — £140,000 • 2 bed • 1 bath • 775 ft²
2 bedroom park home for sale in Lady Bailey, Winterborne Whitechurch, Blandford Forum, DT11 — £150,000 • 2 bed • 1 bath • 1244 ft²
2 bedroom detached house for sale in Winterborne Whitechurch, Blandford Forum, Dorset, DT11 — £110,000 • 2 bed • 1 bath • 554 ft²










































