Low-maintenance park home with driveway, garden and recent insulation upgrades.
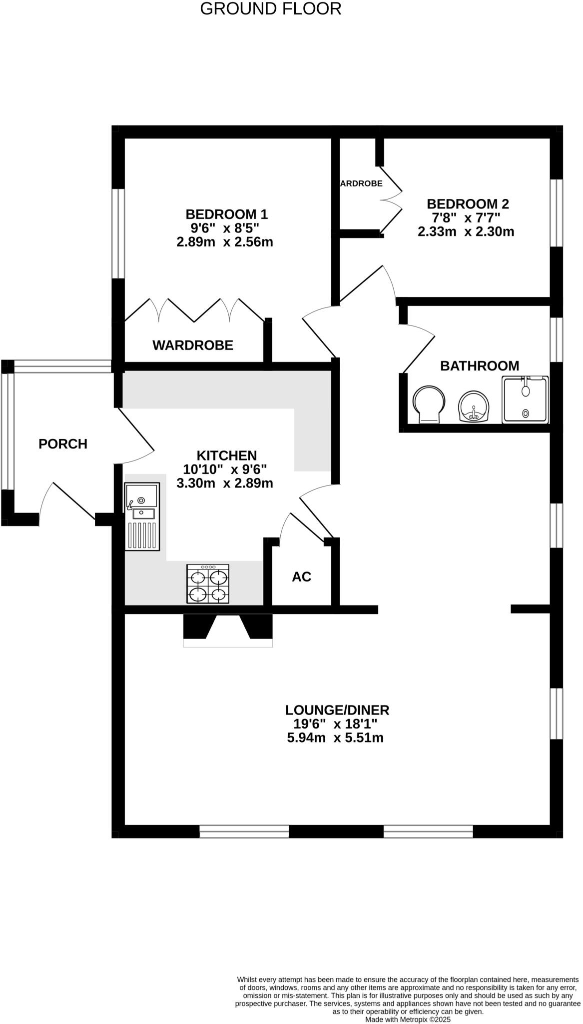
Two bedrooms with built-in wardrobes
A compact, well-presented two-bedroom park home set on the edge of Winterborne Whitechurch, ideal for someone looking to downsize to a low-maintenance home in a rural setting. Built in 2004 by Wessex and recently upgraded with external insulation, the home feels warmer and more efficient than many older park homes. The open-plan living and dining area gives a light, sociable heart to the property, and the kitchen overlooks the side garden for easy morning coffee. Both bedrooms have built-in wardrobes and the shower room is modern and practical. The front brick‑paved driveway provides easy off-street parking and the enclosed side garden has a paved patio, artificial lawn and shrub borders for low‑maintenance outdoor time. Important practical points: the property measures about 600 sq ft and has relatively low internal ceilings and compact room sizes; broadband speeds are slow in this remoter village location. Ground rent is a material ongoing cost (currently £46.56 per week / £2,419.12 per year) and the tenure is not specified, so buyers should clarify site rules, tenure details and any pitch fees before proceeding. Furniture is included in the sale and the home is sold newly renovated with many modern fittings.
2 bedroom bungalow for sale in Lady Bailey Residential Park, Winterborne Whitechurch, Blandford Forum, Dorset, DT11 — £155,000 • 2 bed • 1 bath • 560 ft²
2 bedroom detached house for sale in Winterborne Whitechurch, Blandford Forum, Dorset, DT11 — £140,000 • 2 bed • 1 bath • 775 ft²
2 bedroom detached house for sale in Winterborne Whitechurch, Blandford Forum, Dorset, DT11 — £159,950 • 2 bed • 1 bath • 507 ft²
2 bedroom park home for sale in Lady Bailey, Winterborne Whitechurch, Blandford Forum, DT11 — £150,000 • 2 bed • 1 bath • 1244 ft²
2 bedroom park home for sale in Winterborne Whitechurch, Blandford Forum, Dorset, DT11 — £125,000 • 2 bed • 1 bath • 595 ft²
2 bedroom detached house for sale in Winterborne Whitechurch, Blandford Forum, Dorset, DT11 — £110,000 • 2 bed • 1 bath • 554 ft²


































































