Spacious single-storey home backing onto open fields for relaxed rural living.
Two double bedrooms with built-in storage
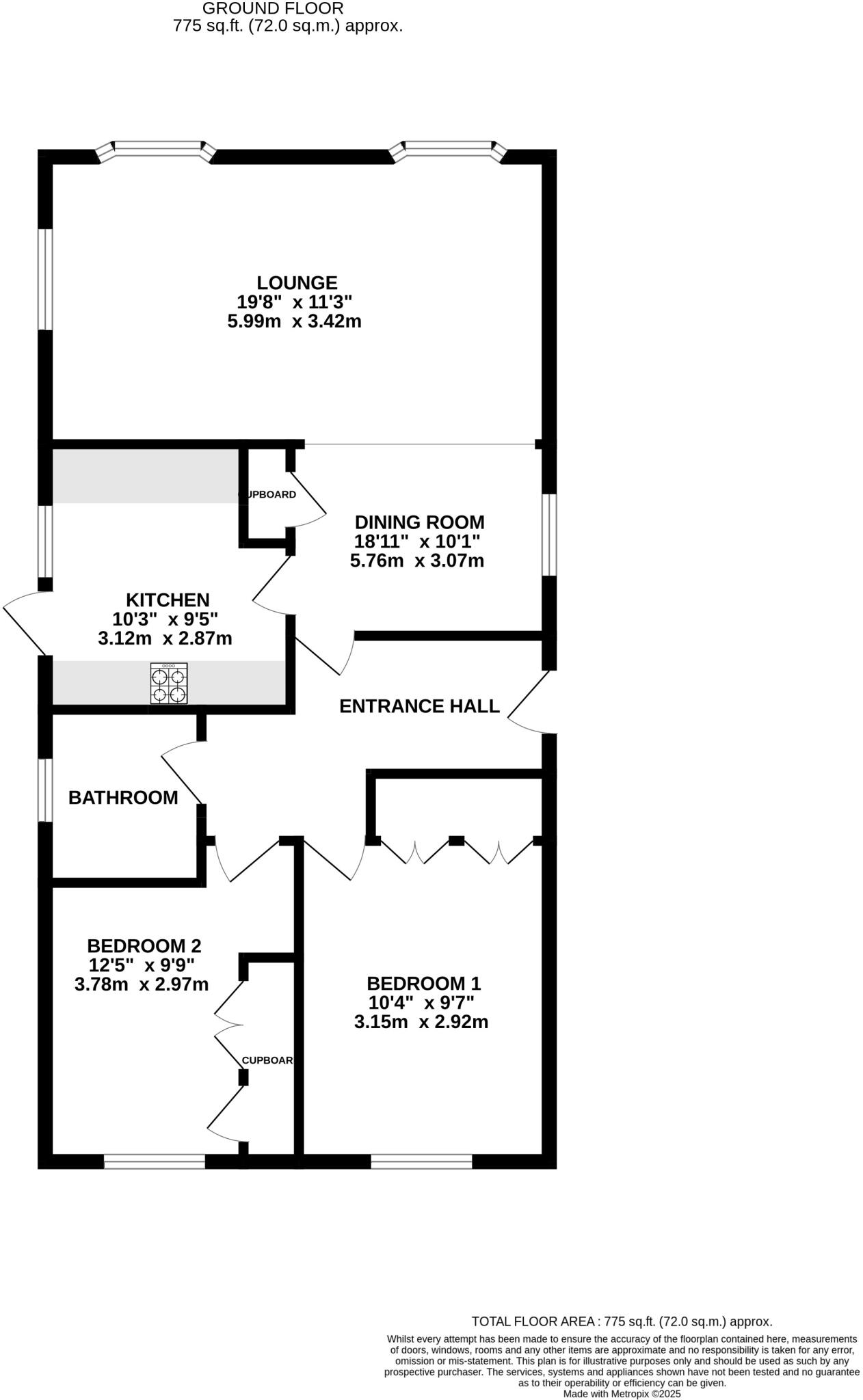
A spacious two-bedroom park home set on Lady Bailey Residential Park, positioned to back onto open countryside with far-reaching rural views. The single-storey layout offers a large lounge/diner, generous kitchen and two double bedrooms with built-in storage — comfortable, low‑maintenance living suited to quieter lifestyles.
Built as a prefabricated park home in the late 20th century, the property is well presented but shows mid-century fittings and will benefit from some modernization to refresh kitchens, bathroom and décor. Heating runs from an LPG boiler with radiators; prospective buyers should note LPG supply and any associated running costs.
The rear garden is enclosed and directly adjoins fields via a small gate, ideal for countryside walks and enjoying privacy. Off-street parking is available. Important practical points: the home is on a residential park for over‑55s, construction is park‑home style rather than brick, and tenure details are not specified — check residency rules, site fees and tenure before committing.
This home will suit downsizers or retirees looking for a peaceful village location and countryside outlook who are happy to carry out light updating and understand park home ownership implications.
2 bedroom detached house for sale in Lady Bailey Residential Park, Winterborne Whitechurch, Blandford Forum, Dorset, DT11 — £150,000 • 2 bed • 1 bath • 805 ft²
2 bedroom park home for sale in Lady Bailey, Winterborne Whitechurch, Blandford Forum, DT11 — £150,000 • 2 bed • 1 bath • 1244 ft²
2 bedroom detached house for sale in Lady Bailey Residential Park, Winterborne Whitechurch, Blandford Forum, Dorset, DT11 — £142,500 • 2 bed • 1 bath • 600 ft²
2 bedroom bungalow for sale in Lady Bailey Residential Park, Winterborne Whitechurch, Blandford Forum, Dorset, DT11 — £155,000 • 2 bed • 1 bath • 560 ft²
2 bedroom park home for sale in Winterborne Whitechurch, Blandford Forum, Dorset, DT11 — £125,000 • 2 bed • 1 bath • 595 ft²
2 bedroom detached house for sale in Winterborne Whitechurch, Blandford Forum, Dorset, DT11 — £110,000 • 2 bed • 1 bath • 554 ft²






































































