Quiet cul-de-sac living with a large garden and extension potential.
Two double bedrooms with good natural light
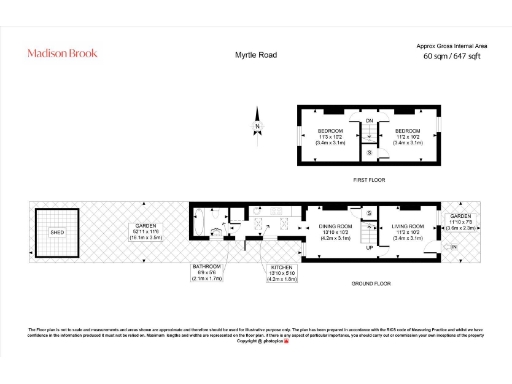
This period two-bedroom cottage on a quiet no-through road offers traditional charm and practical family space. With separate living and dining rooms, a fitted kitchen and a modern bathroom, the layout suits couples or small families seeking a character home close to green space.
The property sits on a generous 52 ft rear garden with a useful shed and scope to extend (STPP), making it an attractive prospect for buyers wanting extra living space or to add value. At 647 sq ft, the home feels compact but well-proportioned, and its freehold tenure is straightforward.
Buyers should be aware this is a Victorian mid-terrace with solid brick walls likely lacking cavity insulation and double glazing of unknown age. The plot is relatively small to the front and the house has only one bathroom. Local crime rates are above average, which may influence buyer priorities. Overall, this is a well-located, characterful property with clear potential for enlargement and improvement.
2 bedroom terraced house for sale in New Road, Hanworth, Feltham, Middlesex, TW13 — £435,000 • 2 bed • 1 bath • 681 ft²
2 bedroom detached house for sale in Park Cottage, Hampton, TW12 — £639,000 • 2 bed • 2 bath • 818 ft²
2 bedroom terraced house for sale in Uxbridge Road, Hampton Hill, TW12 — £575,000 • 2 bed • 1 bath • 693 ft²
3 bedroom house for sale in Parrs Place, Hampton, TW12 — £650,000 • 3 bed • 1 bath • 916 ft²
3 bedroom house for sale in Avenue Road, Hampton, TW12 — £765,000 • 3 bed • 1 bath • 1113 ft²
2 bedroom cottage for sale in Parrs Place, Hampton, TW12 — £550,000 • 2 bed • 1 bath • 694 ft²






































