Two double bedrooms, 70ft garden and excellent schools — characterful family home..
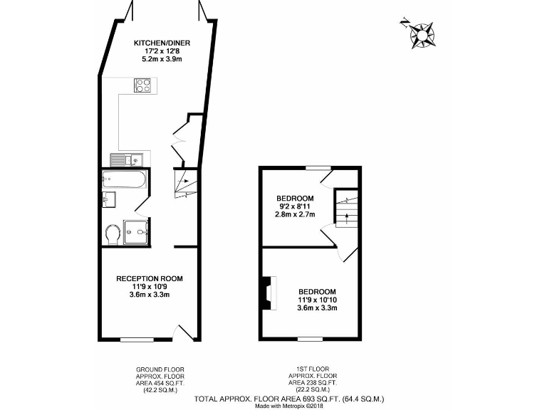
- Two double bedrooms on the first floor
- Large 70ft rear garden with patio and mature planting
- Working wood burner and wood flooring on the ground floor
- Kitchen/diner with bi-fold doors to garden
- Single bathroom only (one shower/bathroom)
- Solid brick walls assumed without added insulation
- Freehold, council tax band D, 693 sq ft (approx.)
- Good transport links and highly regarded nearby schools
A charming two-double-bedroom Victorian terrace in Hampton Hill, arranged over two floors with a generous 70ft rear garden. The ground floor feels contemporary with wood flooring, shutters and a working wood burner; bi-fold doors from the kitchen/diner connect the house to the garden for easy indoor-outdoor living. The first floor houses two good-size double bedrooms and a single stylish bathroom.
This is a well-located family home: fast broadband, low local crime, and easy access to regular trains into London Waterloo, frequent buses to Richmond and Kingston, and the M3/M25. Several highly regarded state and independent schools are within close reach, making the property attractive to families with school-age children.
Construction dates from the early 20th century and the mid-terrace’s solid brick walls are assumed to have no added cavity insulation; buyers should factor this into future energy improvements. The house is freehold, council tax band D, and at about 693 sq ft offers an average overall size for the area. There is one bathroom and modest overall plot size despite the long rear garden.
Overall this property suits buyers seeking a characterful, well-connected family home with a substantial garden and scope to improve energy efficiency. The balance of period detail and contemporary finishes makes it move-in ready, with potential upside from targeted insulation or refurbishment works.
4 bedroom terraced house for sale in Myrtle Road, Hampton, TW12 — £875,000 • 4 bed • 2 bath • 1130 ft²
2 bedroom apartment for sale in Uxbridge Road, Hampton Hill, TW12 — £475,000 • 2 bed • 1 bath • 786 ft²
3 bedroom terraced house for sale in Avenue Road, Hampton, TW12 — £755,000 • 3 bed • 1 bath • 980 ft²
5 bedroom detached house for sale in Uxbridge Road, Hampton Hill, TW12 — £1,100,000 • 5 bed • 2 bath • 1690 ft²
4 bedroom terraced house for sale in Priory Road, Hampton, TW12 — £985,000 • 4 bed • 2 bath • 1389 ft²
4 bedroom end of terrace house for sale in Avenue Road, Hampton, TW12 — £750,000 • 4 bed • 2 bath • 1130 ft²










































