Charming character home with garden and garage, ideal for growing families.
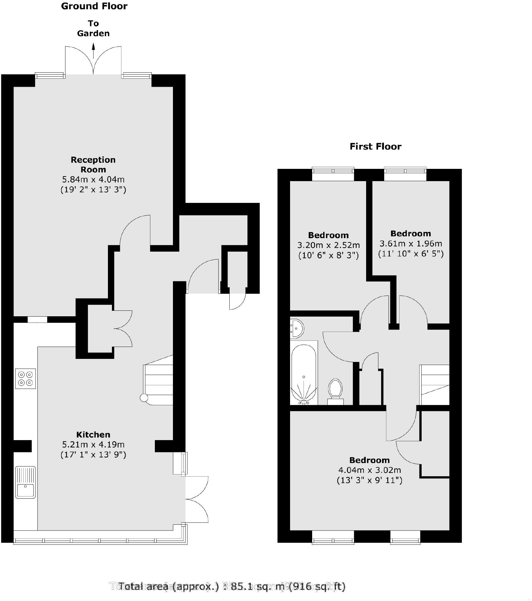
Three bedrooms plus conservatory and original wooden flooring
Wrap-around garden and single garage on a small plot
Scope to extend (subject to planning permission)
Single bathroom only; suitable for families but limited facilities
Solid brick walls assumed uninsulated; may need insulation work
Located in Hampton Village near shops, station, and outstanding schools
Very low local crime, fast broadband, excellent mobile signal
Freehold tenure; Council Tax Band D (moderate)
This charming three-bedroom end-of-terrace cottage in Hampton Village combines original character with practical family living. The house offers a wrap-around garden, conservatory and a single garage — rare for village terraces — plus scope to extend subject to planning permission, which will appeal to buyers seeking extra space or adding value.
Inside, original wooden flooring and exposed beams give a warm, traditional feel. The layout is compact with one bathroom and a modest overall footprint (approx. 916 sq ft). Local convenience is strong: outstanding schools, Hampton station, Waitrose and parks are all within walking distance, ideal for commuting families.
Buyers should note the plot is small and the property’s solid brick walls are assumed uninsulated, so upgrading insulation and modernising services may be needed. Council Tax band D and a single bathroom are practical considerations for larger families. The property is freehold and sits in a very low-crime, very affluent area with fast broadband and excellent mobile signal.
2 bedroom cottage for sale in Parrs Place, Hampton, TW12 — £550,000 • 2 bed • 1 bath • 694 ft²
2 bedroom house for sale in Tudor Road, Hampton, TW12 — £550,000 • 2 bed • 1 bath • 642 ft²
2 bedroom house for sale in Oldfield Road, Hampton, TW12 — £625,000 • 2 bed • 2 bath • 727 ft²
2 bedroom end of terrace house for sale in Tudor Road, Hampton, TW12 — £499,950 • 2 bed • 1 bath • 579 ft²
3 bedroom house for sale in Avenue Road, Hampton, TW12 — £765,000 • 3 bed • 1 bath • 1113 ft²
2 bedroom house for sale in Hanworth Road, Hampton, TW12 — £475,000 • 2 bed • 2 bath • 770 ft²






















