Extended terraced house with sunny south garden and quick Central London links.
Five double bedrooms across two upper floors, principal bedroom full-width bay
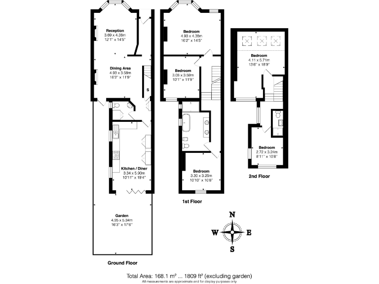
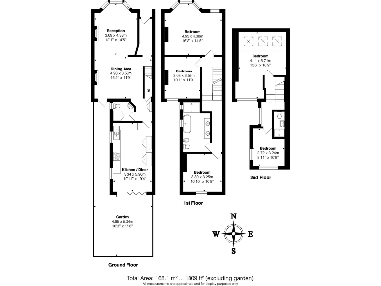
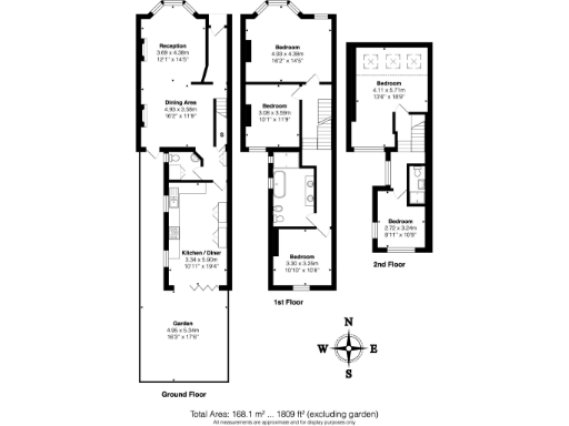
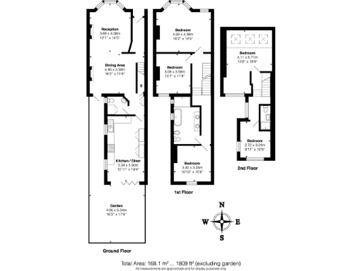
This extended five-bedroom mid-terrace on Purves Road combines generous family living with contemporary finishes and preserved period detail. The ground floor's open-plan living and dining area flows to a modern fitted kitchen and a south-facing, low-maintenance garden — a practical layout for everyday family life and summer entertaining.
Upstairs the house offers five well-proportioned bedrooms across two upper floors, including a principal room that spans the full width with a bay window that brings abundant natural light. The listing describes a high-quality main bathroom suite and a guest WC; note the listing alternately refers to two and three bathrooms, so the exact number should be confirmed.
Practical positives include freehold tenure, solid brick construction, double glazing already installed, excellent mobile signal and fast broadband — useful for working from home. Important considerations: the solid walls are assumed to have no added insulation, some glazing predates 2002, council tax is above average and parking is on-street/permit only. These factors affect running costs and potential retrofit works but also present straightforward improvement opportunities for buyers wanting to add value.
5 bedroom house for sale in Purves Road, London, NW10 — £1,600,000 • 5 bed • 3 bath • 1800 ft²
4 bedroom terraced house for sale in Purves Road, London, NW10 — £1,600,000 • 4 bed • 2 bath • 1918 ft²
5 bedroom terraced house for sale in Chamberlayne Road, Kensal Rise, London, NW10 — £1,700,000 • 5 bed • 3 bath • 2549 ft²
5 bedroom terraced house for sale in Bramston Road, Kensal Rise, London, NW10 — £1,575,000 • 5 bed • 2 bath • 2437 ft²
5 bedroom end of terrace house for sale in Palermo Road, London, NW10 — £1,100,000 • 5 bed • 1 bath • 1500 ft²
5 bedroom end of terrace house for sale in Mortimer Road, London, NW10 — £1,350,000 • 5 bed • 2 bath • 1467 ft²


























































