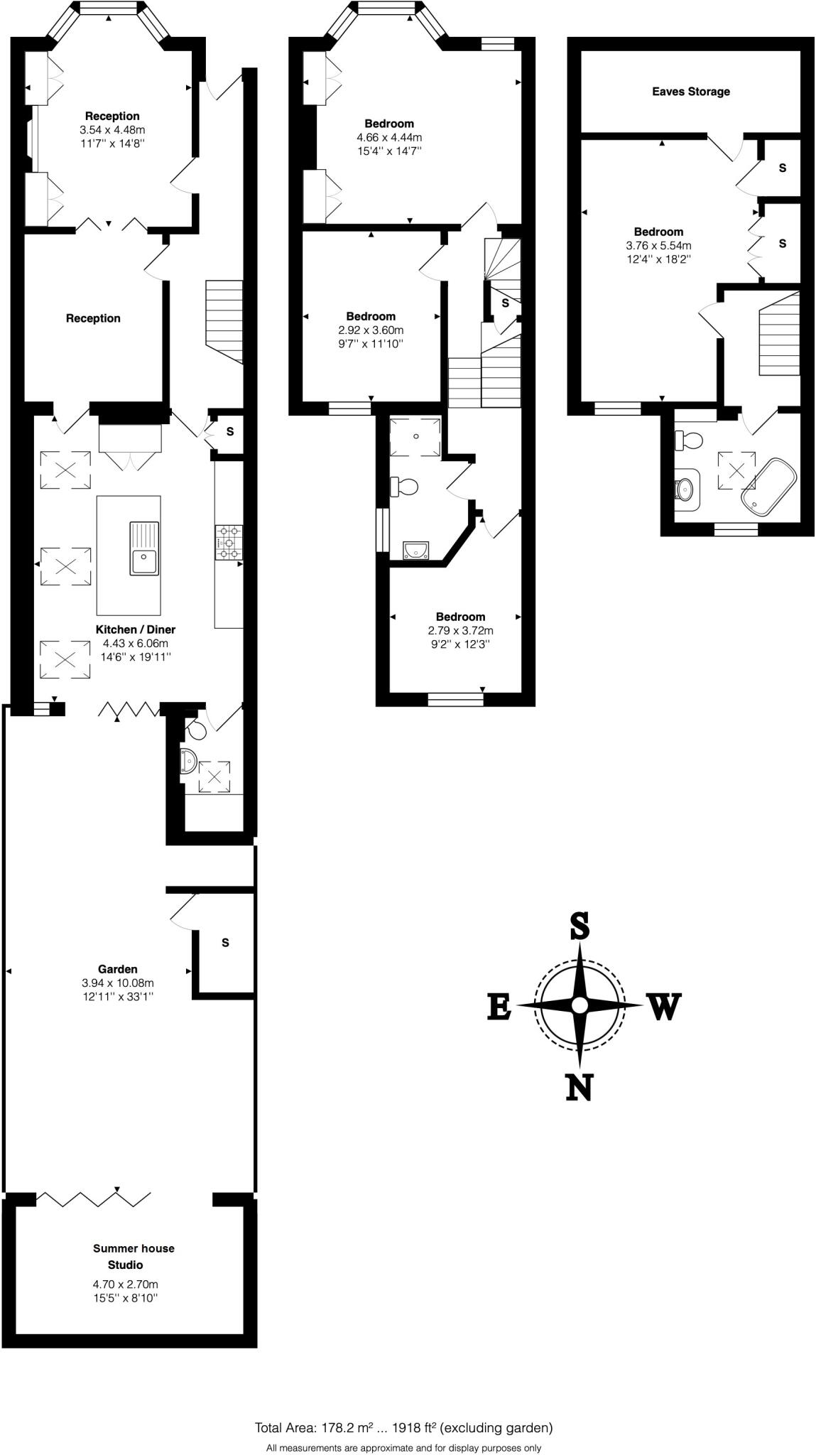
**Standout Features:**
- Four double bedrooms and two modern bathrooms
- Spacious loft conversion with a guest bedroom and separate bathroom suite
- Extensive open-plan bespoke kitchen with marble countertops and island
- Beautifully maintained garden with a studio/summer house
- High ceilings, large reception rooms, and Victorian charm throughout
- Excellent local transport links (Bakerloo & Overground)
**Description:**
Discover this beautifully extended four-bedroom terraced house in Kensal Rise, boasting an impressive 1,918 sqft of living space. From the moment you step inside, you'll be greeted by a bright, airy double reception room enhanced by a cozy log burner and classic bay window. The heart of the home is the remarkable open-plan kitchen and dining area, showcasing bespoke handmade cabinetry and convenient bi-fold doors that seamlessly link to the garden—a perfect space for family gatherings or entertaining friends.
The property features a luxurious clean design with high-quality finishes complete with two modern bathrooms and a double loft conversion, providing additional flexibility for guests or family. Outside, the well-manicured garden flows into a versatile studio/summer house, ideal for use as a gym, office, or creative escape.
Situated on a quiet residential street, you'll enjoy easy access to Kensal Green Underground Station and local amenities, including highly-rated schools like Princess Frederica CE School. While this exceptional home shines with character and light, prospective buyers should note the average crime rate in the area. Overall, this property presents a rare opportunity for families looking for space and comfort in a desirable location—schedule your viewing today and envision your future in this stunning home.
4 bedroom terraced house for sale in College Road, London, NW10 — £1,500,000 • 4 bed • 2 bath • 2112 ft²
4 bedroom terraced house for sale in Whitmore Gardens, London, NW10 5HH, NW10 — £1,375,000 • 4 bed • 2 bath • 1651 ft²
5 bedroom terraced house for sale in Mortimer Road, London, NW10 — £1,650,000 • 5 bed • 4 bath • 2221 ft²
4 bedroom end of terrace house for sale in Ashburnham Road, London, NW10 — £1,995,000 • 4 bed • 2 bath • 2141 ft²
4 bedroom terraced house for sale in Harlesden Road, London, NW10 — £775,000 • 4 bed • 1 bath • 1263 ft²
5 bedroom end of terrace house for sale in Mortimer Road, London, NW10 — £1,350,000 • 5 bed • 2 bath • 1467 ft²


































































