Large period terrace close to parks, schools and local cafés.
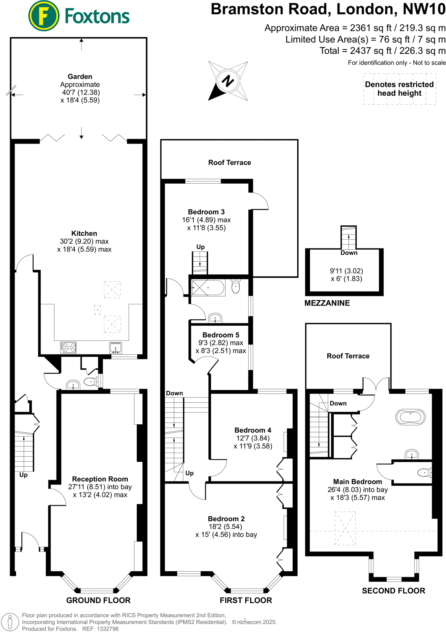
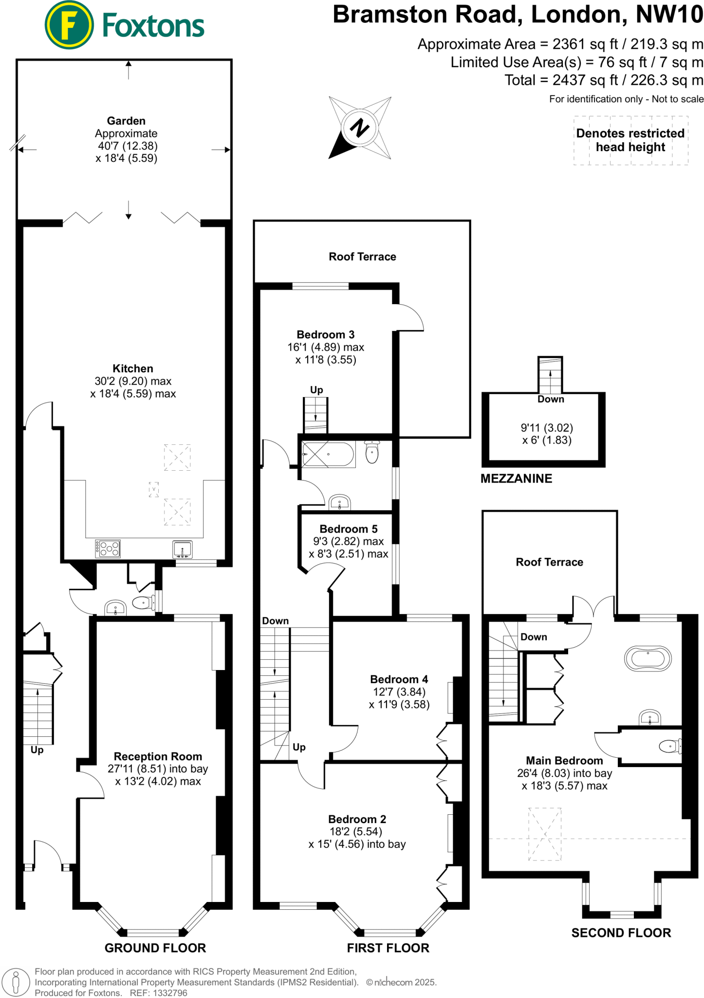
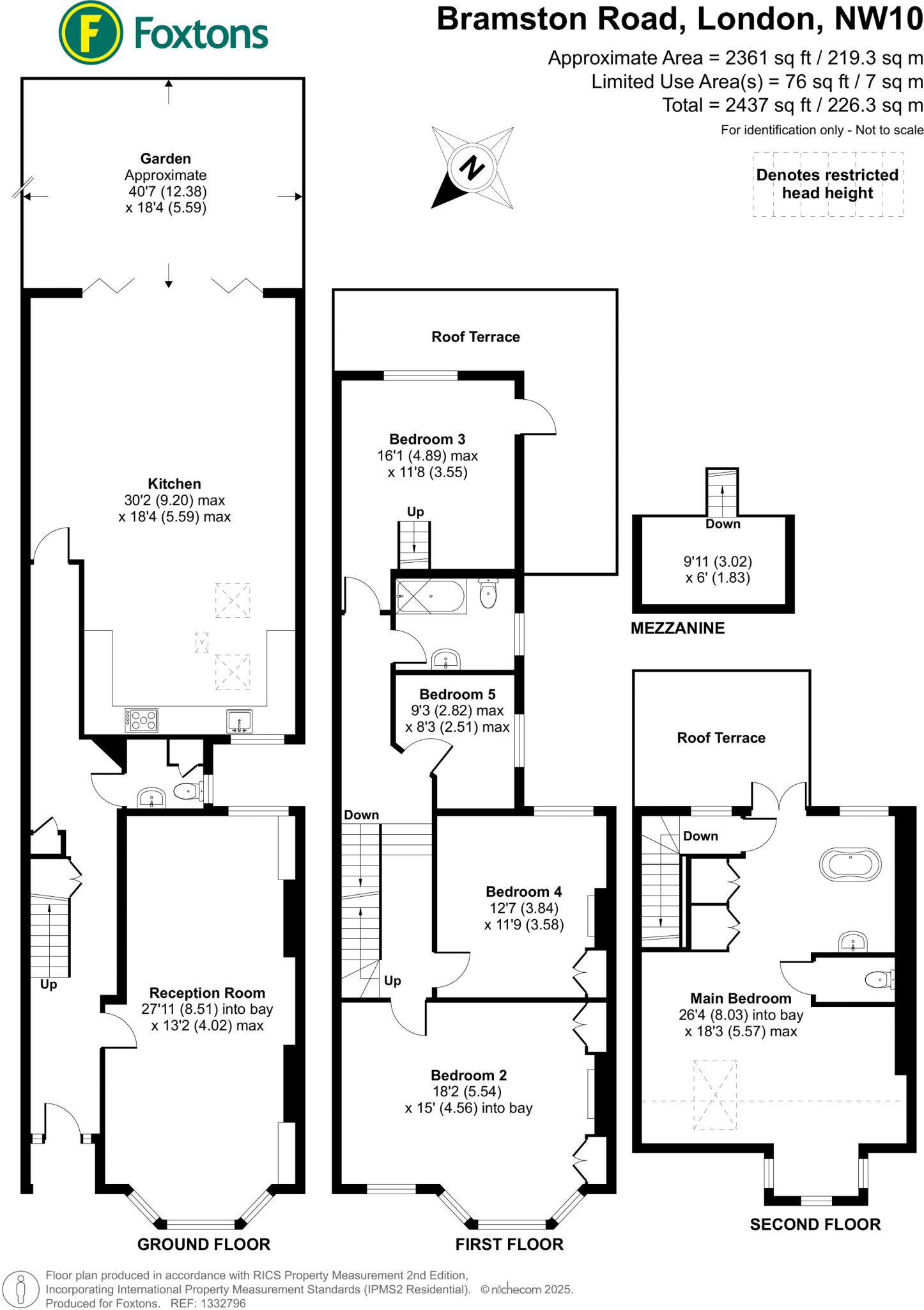
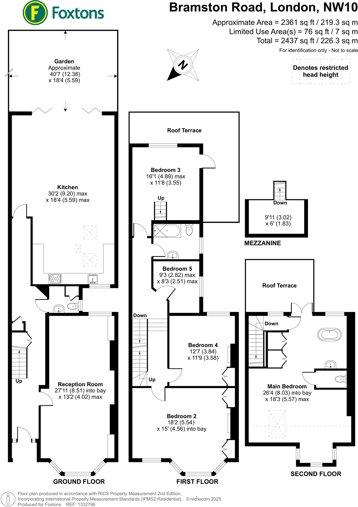
Five double bedrooms across three floors plus mezzanine
Spacious and versatile, this five-bedroom Victorian terraced house spreads over three floors plus a mezzanine, offering generous living space for a growing family. The expansive reception room flows into a formal dining area, while a large open-plan kitchen provides a relaxed dining and lounging zone — ideal for everyday family life and entertaining. Two private balconies and a pretty rear garden extend living outdoors.
Set in a lively Kensal Rise location, the property sits moments from Roundwood Park, independent cafés and local shops, with good transport links nearby. Local schools include several Good-rated primaries and secondary options, making the area well suited to families. Practical benefits include freehold tenure, fast broadband, excellent mobile signal and low local crime.
The house retains period character — bay windows, high ceilings, cornicing and fireplaces — but also presents clear improvement opportunities. The solid brick walls are assumed uninsulated and the glazing install date is unknown, so updating insulation, windows and heating controls would improve comfort and energy efficiency. The plot is modest in size, and while accommodation is generous, some rooms may benefit from modernisation or reconfiguration to suit contemporary family needs.
Overall, this property is a strong choice for families seeking substantial internal space, period charm and proximity to parks and schools, with scope to add value through targeted energy and cosmetic upgrades.
5 bedroom terraced house for sale in Buchanan Gardens, London NW10 — £1,950,000 • 5 bed • 2 bath • 1956 ft²
5 bedroom terraced house for sale in Chamberlayne Road, Kensal Rise, London, NW10 — £1,700,000 • 5 bed • 3 bath • 2549 ft²
5 bedroom semi-detached house for sale in Harley Road, Harlesden, London, NW10 — £1,000,000 • 5 bed • 2 bath • 1781 ft²
6 bedroom house for sale in Chamberlayne Road, Kensal Rise, London, NW10 — £1,525,000 • 6 bed • 3 bath • 2185 ft²
5 bedroom semi-detached house for sale in Chamberlayne Road, Queen's Park, NW10 — £1,450,000 • 5 bed • 2 bath • 1967 ft²
5 bedroom terraced house for sale in Purves Road, London, NW10 — £1,600,000 • 5 bed • 2 bath • 1809 ft²






























































































































































































































































































































































































