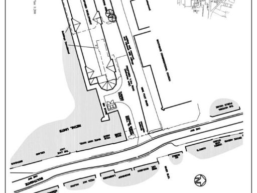
**Standout Features:**
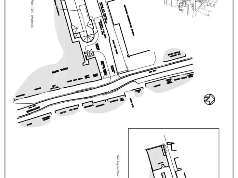
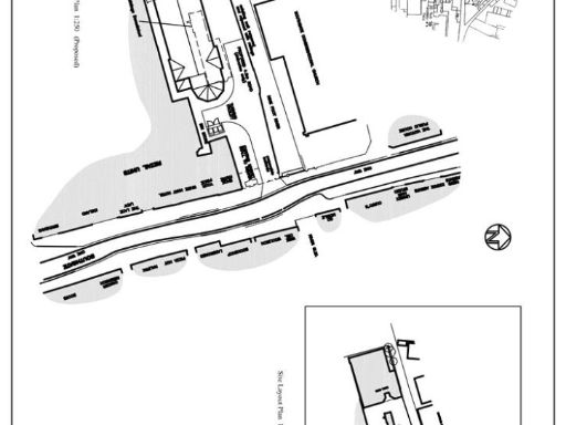
- Large plot size with full planning permission (10/0855/FULEXT).
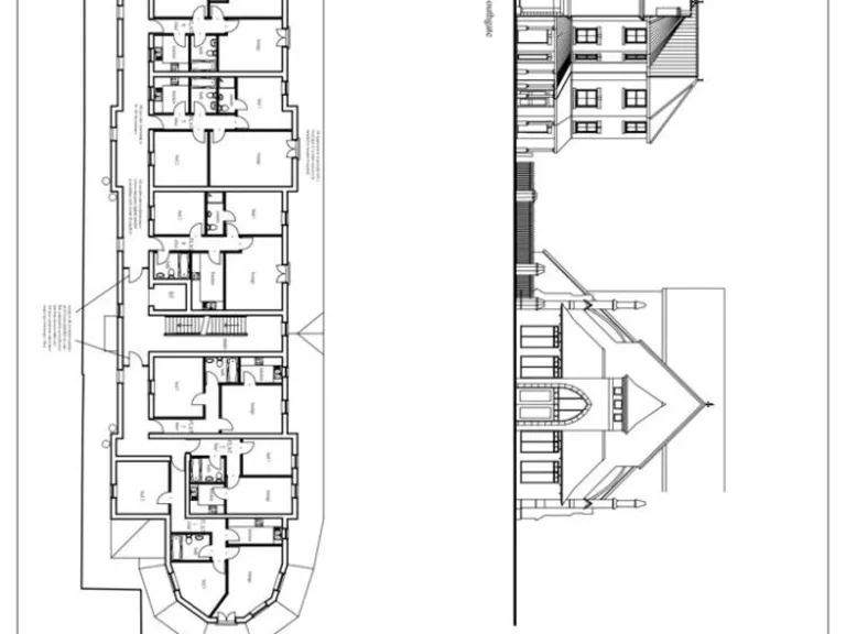
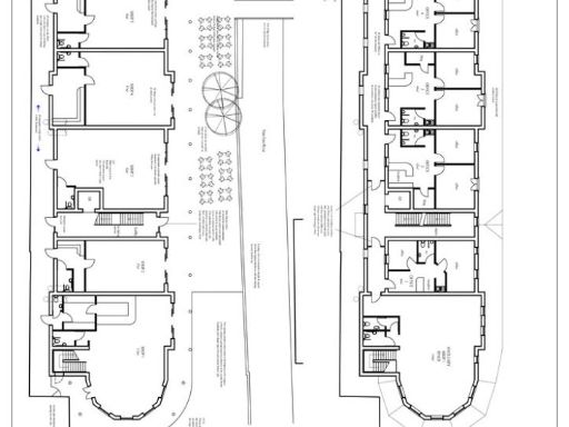
- Mixed-use development potential for 6 shops, 3 offices, and 8 residential flats.
- Urban location ideal for high foot traffic and successful business ventures.
- Close proximity to a range of amenities including schools, retail, dining, and recreational facilities.
This prime development plot in the heart of a transitional neighborhood presents a compelling opportunity for investors and developers seeking to capitalize on the growing demand for mixed-use spaces. With full planning permission granted for an attractive design that combines 6 retail units, 3 office spaces, and 8 residential flats, the potential for generating income from multiple revenue streams is significant.
Situated in a city environment, this land benefits from excellent mobile signal and is ideally positioned for visibility and access, ensuring high footfall for retail operations. The local area is well served by a variety of amenities including shops, schools with favorable Ofsted ratings, and leisure facilities, making it a desirable location for both residential and commercial tenants.
However, prospective buyers should consider the area's high crime rate and general deprivation, which may affect certain aspects of property desirability and future investment return. Nonetheless, this unique plot presents an exclusivity rarely available, perfect for those ready to envision and embark on a transformative project in a bustling urban setting. Act quickly to explore this enticing opportunity!
Industrial development for sale in Gore Lane, PE11 1BN, PE11 — £125,000 • 1 bed • 1 bath • 9106 ft²
Industrial development for sale in Pinchbeck Road, PE11 1QF, PE11 — £275,000 • 1 bed • 1 bath
Plot for sale in Watergate, Sleaford, Lincolnshire, NG34 — £67,000 • 1 bed • 1 bath
Land for sale in Building Plot Adj, 38 Victoria Street , Lincoln, Lincolnshire, LN1 — £80,000 • 1 bed • 1 bath
Land for sale in Carline Road, Lincoln, LN1 — £475,000 • 1 bed • 1 bath
Land for sale in Land Adj, Lions Way, Sleaford, Lincolnshire, NG34 — £79,950 • 1 bed • 1 bath • 13068 ft²


























