**Standout Features:**
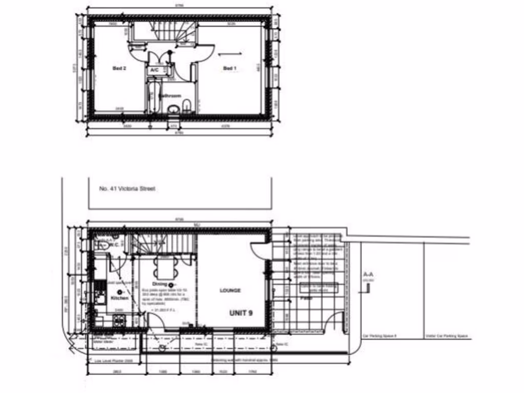
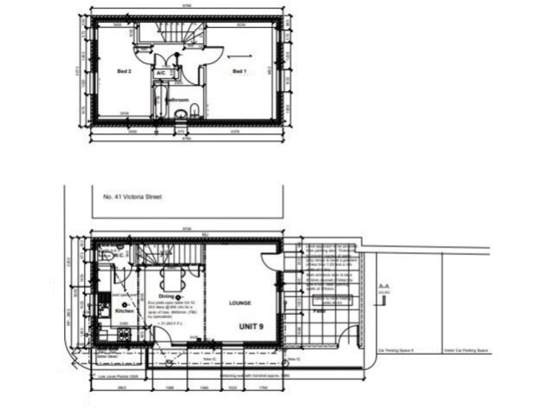
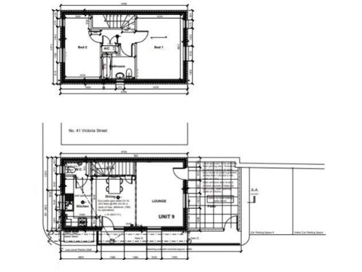
- Approved planning for a 2-bedroom detached dwelling (ref 2023/0392/CXN)
- Prime city center location in Lincoln
- Allocated off-street parking
- Low crime rate and affluent community
**Summary:**
Discover a rare opportunity to invest in a prime residential building plot located in the heart of Lincoln's vibrant city center, near the renowned Cathedral. With approved planning permission for a modern 2-bedroom detached dwelling, this freehold land offers potential buyers a canvas to create a unique urban home or an attractive investment property. The plot, part of the successful Bailgate Mount Development, includes an allocated off-street parking space, making city living convenient and appealing.
Amenities are just steps away, including cafes, shops, and restaurants, catering to a cosmopolitan lifestyle. Additionally, families will appreciate the proximity to several reputable primary and secondary schools with good Ofsted ratings. While the plot size is small, it accommodates the perfect balance of urban sophistication and comfort, while low crime rates in the area enhance the sense of security. Seize this opportunity today, as plots of this caliber in such a desirable location are rare to find!
Land for sale in Carline Road, Lincoln, Lincolnshire, LN1 — £180,000 • 1 bed • 1 bath
Land for sale in Building Plot Adj 21 Northgate, Lincoln, Lincolnshire, LN2 — £300,000 • 2 bed • 1 bath • 789 ft²
Land for sale in Carline Road, Lincoln, LN1 — £475,000 • 1 bed • 1 bath
Residential development for sale in Residential Development, 20 Carline Road, Lincoln, LN1 1HG, LN1 — £475,000 • 1 bed • 1 bath • 4811 ft²
4 bedroom detached house for sale in 2 Cottesford Place, James Street, Lincoln, Lincolnshire, LN2 1QF, LN2 — £650,000 • 4 bed • 1 bath • 3896 ft²
Residential development for sale in 4 Guildhall Street, Lincoln, LN1 1TT, LN1 — £310,000 • 1 bed • 1 bath • 2290 ft²


























