**Standout Features:**
- **Prime Location**: Upscale residential area overlooking the city, near Lincoln Cathedral and Castle.
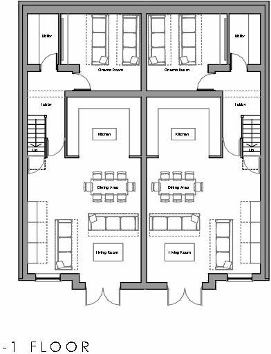
- **Planning Permission**: Approved plans for two 4-storey semi-detached houses with garages (City of Lincoln Council Application Number: 2019/0465/FUL).
- **Development Potential**: Option for a larger detached house with appropriate planning consent.
- **Community Amenities**: Low crime rates, excellent mobile signal, and fast broadband speeds. Close to schools with good Ofsted ratings.
The property on Carline Road, Lincoln is a rare development opportunity in a highly sought-after location, perfect for investors and families looking to create their dream home. Spanning two significant building plots, it comes with planning permission to construct two stylish 4-storey semi-detached houses, complete with garages, or the flexibility to develop a larger detached home by securing additional approvals.
Nestled in a thriving neighborhood, this plot offers a serene view of the city, putting you just moments away from key amenities including shops, restaurants, parks, and cultural attractions. The surrounding area is known for its affluent community, making it an attractive option for future tenants or families.
While the potential for construction is substantial, prospective buyers should be aware of the necessity for further planning considerations for alternate home designs. This unique investment opportunity won't last long—secure your chance to build in this vibrant part of Lincoln today!
Residential development for sale in Residential Development, 20 Carline Road, Lincoln, LN1 1HG, LN1 — £475,000 • 1 bed • 1 bath • 4811 ft²
Land for sale in Carline Road, Lincoln, Lincolnshire, LN1 — £180,000 • 1 bed • 1 bath
Land for sale in Building Plot Adj, 38 Victoria Street , Lincoln, Lincolnshire, LN1 — £80,000 • 1 bed • 1 bath
Land for sale in Building Plot Adj 21 Northgate, Lincoln, Lincolnshire, LN2 — £300,000 • 2 bed • 1 bath • 789 ft²
Commercial development for sale in Land At Albion Close, Lincoln, Lincolnshire, LN1 — £500,000 • 1 bed • 1 bath
Plot for sale in Land Off, Southgate, Sleaford, Lincolnshire, NG34 — £600,000 • 1 bed • 1 bath


























































