Spacious four-bed character home on 0.7 acre plot near Groombridge village..
About 0.7 acre mature private garden with established trees and patios
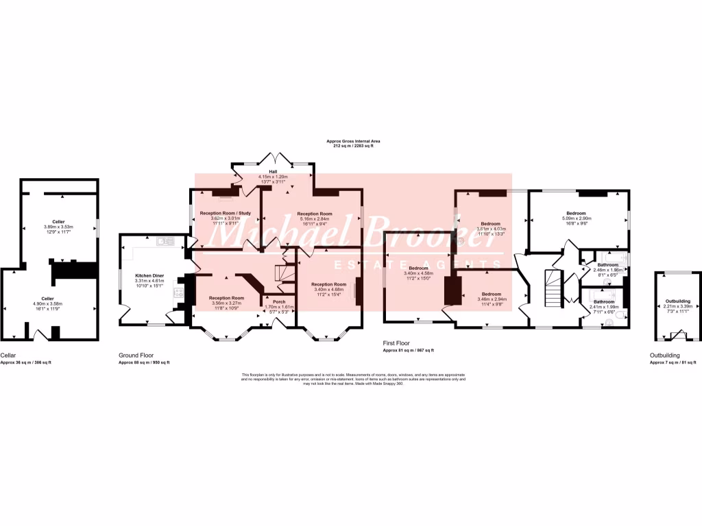
Four bedrooms, two bathrooms, four reception rooms and cellar
Georgian character: high ceilings, sash windows and open fireplaces
Timber garage, off-street hardstanding parking and useful outbuildings
Accessible to Eridge station (direct to London) and Groombridge village
EPC D; double glazing pre-2002 and likely uninsulated solid brick walls
Private drainage; property subject to restrictive covenants and easements
Cellar has restricted headroom; some updating and energy works likely required
Set within about 0.7 acres of mature garden, this Georgian-style detached house offers spacious family living in a peaceful rural setting yet within easy reach of Groombridge village and Eridge station. High ceilings, sash windows and multiple reception rooms give the home strong period character and generous entertaining space. The large rear garden, established trees and outbuildings provide scope for gardening, play and outdoor entertaining.
Internally the layout works well for family life: four good-sized bedrooms (one interconnecting), two bathrooms, four reception rooms, kitchen/breakfast room, cellar and a timber garage with off-street parking. Practical features include mains gas central heating via boiler and radiators, useful storage cupboards and a partially boarded loft. Direct rail services to London from Eridge and local schools make this attractive for commuting families.
There are important practical considerations: the house has a dated EPC rating of D, double glazing was installed before 2002 and the original solid brick walls are likely uninsulated, so energy efficiency improvements would be advisable. The property also sits on private drainage and is subject to restrictive covenants and rights/easements. The cellar has restricted headroom and some internal areas would benefit from updating to modern standards.
Overall the home is a characterful, substantial family residence with considerable garden and extension potential for those willing to invest in energy upgrades and sympathetic refurbishment. Viewing is recommended to appreciate the scale, setting and long-term possibilities.
3 bedroom semi-detached house for sale in Groombridge Lane, Eridge Green, Tunbridge Wells, Kent, TN3 — £650,000 • 3 bed • 1 bath • 1346 ft²
5 bedroom semi-detached house for sale in Corseley Road, Groombridge, Tunbridge Wells, East Sussex, TN3 — £1,200,000 • 5 bed • 3 bath • 3905 ft²
4 bedroom semi-detached house for sale in Eridge Road, Groombridge, TN3 — £895,000 • 4 bed • 2 bath • 1545 ft²
4 bedroom detached house for sale in Orchard Rise, Tunbridge Wells, TN3 — £799,500 • 4 bed • 1 bath • 1553 ft²
3 bedroom semi-detached house for sale in Park Corner, Groombridge, Tunbridge Wells, TN3 — £645,000 • 3 bed • 1 bath • 1500 ft²
5 bedroom detached house for sale in Eridge Road, Groombridge, TN3 — £1,750,000 • 5 bed • 3 bath • 2992 ft²


































































































