**Standout Features:**
- Modern 5-bedroom detached house in a new build development
- High-specification luxury finishes including Neff appliances and Lusso Stone bathrooms
- Energy-efficient with underfloor heating, heat pump, and solar energy
- Ample outdoor space with gardens and designated off-street parking with charging points
- Prime commuter location, 10-minute walk to Rosyth Train Station
- Off-plan purchasing options available, allowing customization directly with the developer
**Potential Concerns:**
- Some areas in Dunfermline may be considered deprived
- Broadband speeds may be slow
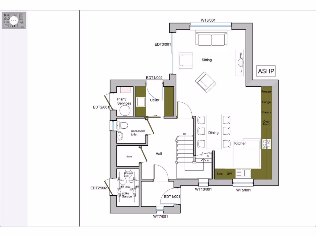
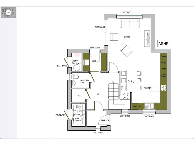
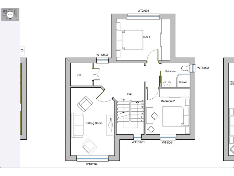
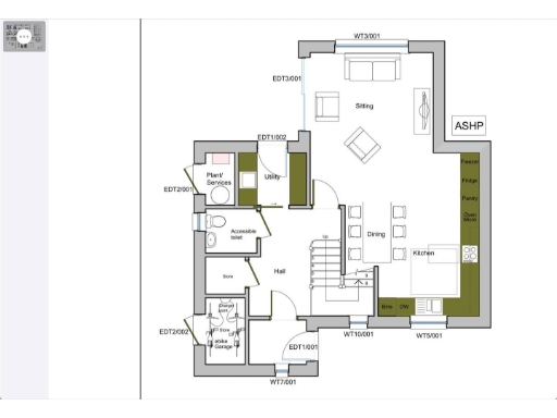
This exquisite 5-bedroom detached home in Pitreavie, Dunfermline, offers a blend of modern luxury and practical efficiency, perfect for families seeking comfort and style. Spanning 2,160 square feet, it boasts a thoughtfully designed open-concept layout enhanced by natural light and high-end finishes like top-of-the-line Neff appliances and opulent Lusso Stone bathrooms. The home is energy-efficient, showcasing eco-friendly features including underfloor heating, a heat pump, and solar capabilities, making it both sustainable and cost-effective.
Located in a tranquil cul-de-sac within the Pitreavie Castle Estate, this property is an ideal commuter base with convenient access to the M90 motorway and Rosyth Train Station just a 10-minute walk away. With exceptional outdoor space and off-street parking available, this home encourages family gatherings and outdoor activities. As a new build, the opportunity to purchase off-plan allows discerning buyers to personalize their specifications directly with the reputable local developer, ensuring your future residence is tailored to your unique needs. Don't miss the chance to secure this luxurious home—schedule a viewing today to explore its lofty potential!
5 bedroom detached house for sale in Plot 5, Castle Brae, Pitreavie, Dunfermline, KY11 8QF, KY11 — £525,000 • 5 bed • 3 bath • 2160 ft²
5 bedroom detached house for sale in Plot 1, Castle Brae, Pitreavie, Dunfermline, KY11 8QF, KY11 — £525,000 • 5 bed • 3 bath • 2160 ft²
5 bedroom detached house for sale in Plot 2, Castle Brae, Pitreavie, Dunfermline, KY11 8QF, KY11 — £525,000 • 5 bed • 3 bath • 2160 ft²
Plot for sale in Plot 4, Castle Brae, Pitreavie, Dunfermline, KY11 8QF, KY11 — £525,000 • 5 bed • 3 bath • 2160 ft²
5 bedroom detached house for sale in Plot 6, Castle Brae, Pitreavie, Dunfermline, KY11 8QF, KY11 — £525,000 • 5 bed • 3 bath • 2160 ft²
3 bedroom end of terrace house for sale in Comely Park Mews, 134 New Row, Dunfermline, KY12 7DW, KY12 — £320,000 • 3 bed • 3 bath • 1305 ft²


































































































