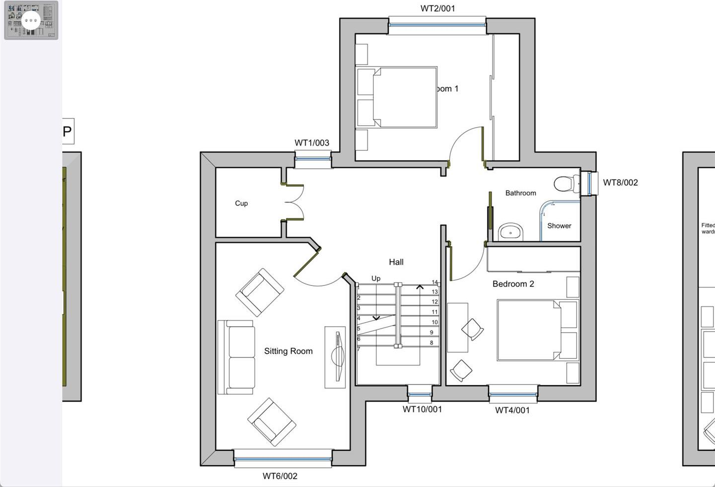
**Standout Features:**
- **Modern New Build**: 5-bedroom detached house with contemporary architectural design.
- **High Specifications**: Luxurious finishes, including Neff appliances and Lusso Stone bathrooms.
- **Energy Efficient**: Underfloor heating, heat pump, and solar energy integrated.
- **Outdoor Space**: Private garden and off-street parking with electric car charging bays.
- **Excellent Commute**: Convenient access to M90 motorway and within walking distance to Rosyth Train Station.
**Concise Summary:**
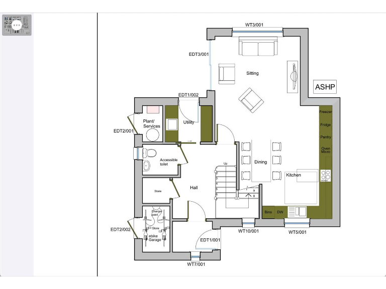
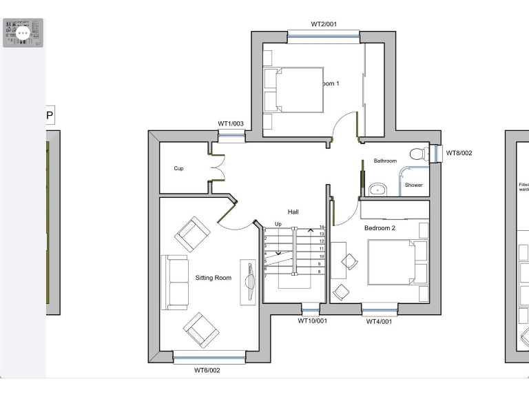
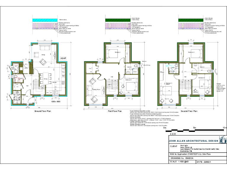
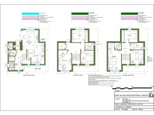
Discover a remarkable opportunity to own this new build 5-bedroom detached home at Plot 1, Castle Brae, Dunfermline, perfect for families and discerning buyers. Designed with an emphasis on space and tranquility, this home showcases high-end finishes including top-of-the-line Neff appliances and luxurious Lusso Stone-fitted bathrooms. The open-plan living area is flooded with natural light, providing an inviting space for relaxation and entertainment.
Equipped with energy-efficient features such as underfloor heating and solar panels, this property blends modern comfort with sustainability. Beyond its striking interior, it boasts a private garden and three parking bays, ready for your electric vehicle. Located in a serene community with easy access to the M90, this home is also an ideal base for commuting to Edinburgh. With its combination of luxury and practicality, this exclusive development of six bespoke homes won't last long—envision your future here!
5 bedroom detached house for sale in Plot 5, Castle Brae, Pitreavie, Dunfermline, KY11 8QF, KY11 — £525,000 • 5 bed • 3 bath • 2160 ft²
Plot for sale in Plot 4, Castle Brae, Pitreavie, Dunfermline, KY11 8QF, KY11 — £525,000 • 5 bed • 3 bath • 2160 ft²
5 bedroom detached house for sale in Plot 3, Castle Brae, Pitreavie, Dunfermline, KY11 8QF, KY11 — £525,000 • 5 bed • 3 bath • 2160 ft²
5 bedroom detached house for sale in Plot 2, Castle Brae, Pitreavie, Dunfermline, KY11 8QF, KY11 — £525,000 • 5 bed • 3 bath • 2160 ft²
5 bedroom detached house for sale in Plot 6, Castle Brae, Pitreavie, Dunfermline, KY11 8QF, KY11 — £525,000 • 5 bed • 3 bath • 2160 ft²
3 bedroom end of terrace house for sale in Comely Park Mews, 134 New Row, Dunfermline, KY12 7DW, KY12 — £320,000 • 3 bed • 3 bath • 1305 ft²






































































































