**Standout Features:**
- Brand new, high-specification luxury home.
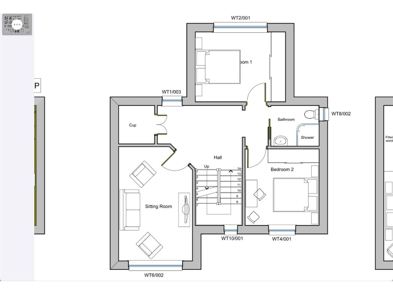
- Spacious five bedrooms and three bathrooms across three floors.
- State-of-the-art kitchen with top-of-the-range Neff appliances.
- Energy-efficient with underfloor heating, heat pump, and solar panels.
- Off-street parking with dedicated electric car charger.
- Located within easy reach of Edinburgh and local amenities.
**Potential Downsides:**
- The garden and exterior space dimensions are unspecified.
- Broadband speeds may be slow.
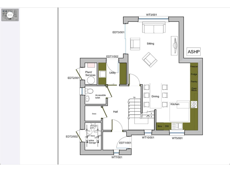
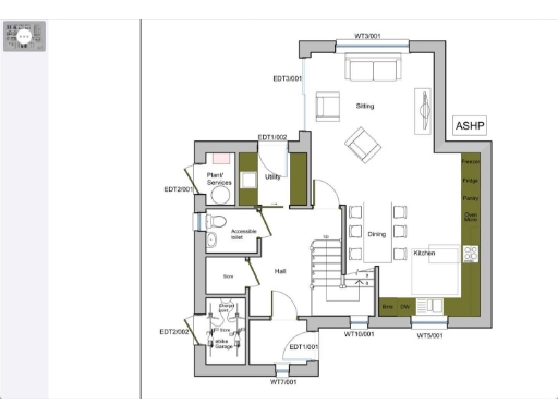
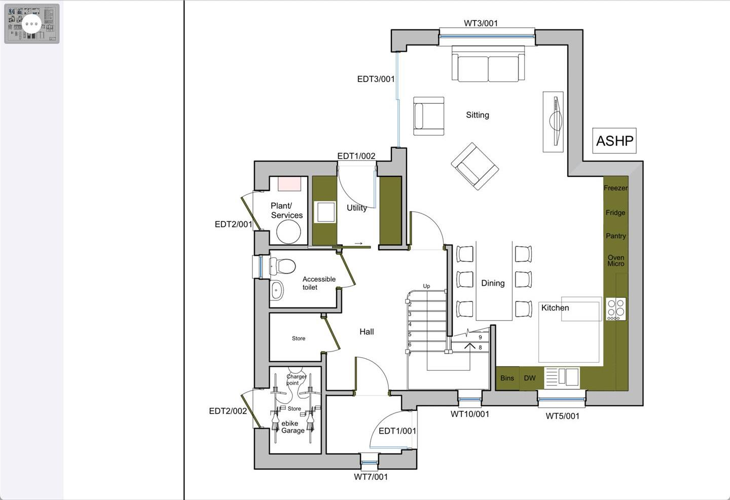
Introducing a stunning new build at Plot 4, Castle Brae, offering an impressive blend of modern design and luxury living in the heart of Dunfermline. Spanning 2,160 square feet across three thoughtfully designed levels, this home features five spacious bedrooms, making it perfect for families or shared living. The contemporary kitchen and dining area, outfitted with premium Neff appliances, is ideal for hosting gatherings or enjoying family meals.
This property embodies energy efficiency with its underfloor heating, heat pump, and solar technology, ensuring a low carbon footprint and lower utility bills. Additionally, you will enjoy the convenience of off-street parking with an electric car charging station.
Situated in the historic and vibrant City of Dunfermline, you're just a short walk from local transport links, including Rosyth Train Station, facilitating smooth commuting to Edinburgh and beyond. This exclusive development of six detached homes is a unique opportunity for discerning buyers looking to customize their living space. Secure your future in this tranquil setting—available off-plan, act fast while this exceptional opportunity lasts!
5 bedroom detached house for sale in Plot 1, Castle Brae, Pitreavie, Dunfermline, KY11 8QF, KY11 — £525,000 • 5 bed • 3 bath • 2160 ft²
5 bedroom detached house for sale in Plot 5, Castle Brae, Pitreavie, Dunfermline, KY11 8QF, KY11 — £525,000 • 5 bed • 3 bath • 2160 ft²
5 bedroom detached house for sale in Plot 3, Castle Brae, Pitreavie, Dunfermline, KY11 8QF, KY11 — £525,000 • 5 bed • 3 bath • 2160 ft²
5 bedroom detached house for sale in Plot 6, Castle Brae, Pitreavie, Dunfermline, KY11 8QF, KY11 — £525,000 • 5 bed • 3 bath • 2160 ft²
5 bedroom detached house for sale in Plot 2, Castle Brae, Pitreavie, Dunfermline, KY11 8QF, KY11 — £525,000 • 5 bed • 3 bath • 2160 ft²


































































































