Spacious Grade II listed penthouse with private sun terrace and indoor parking..
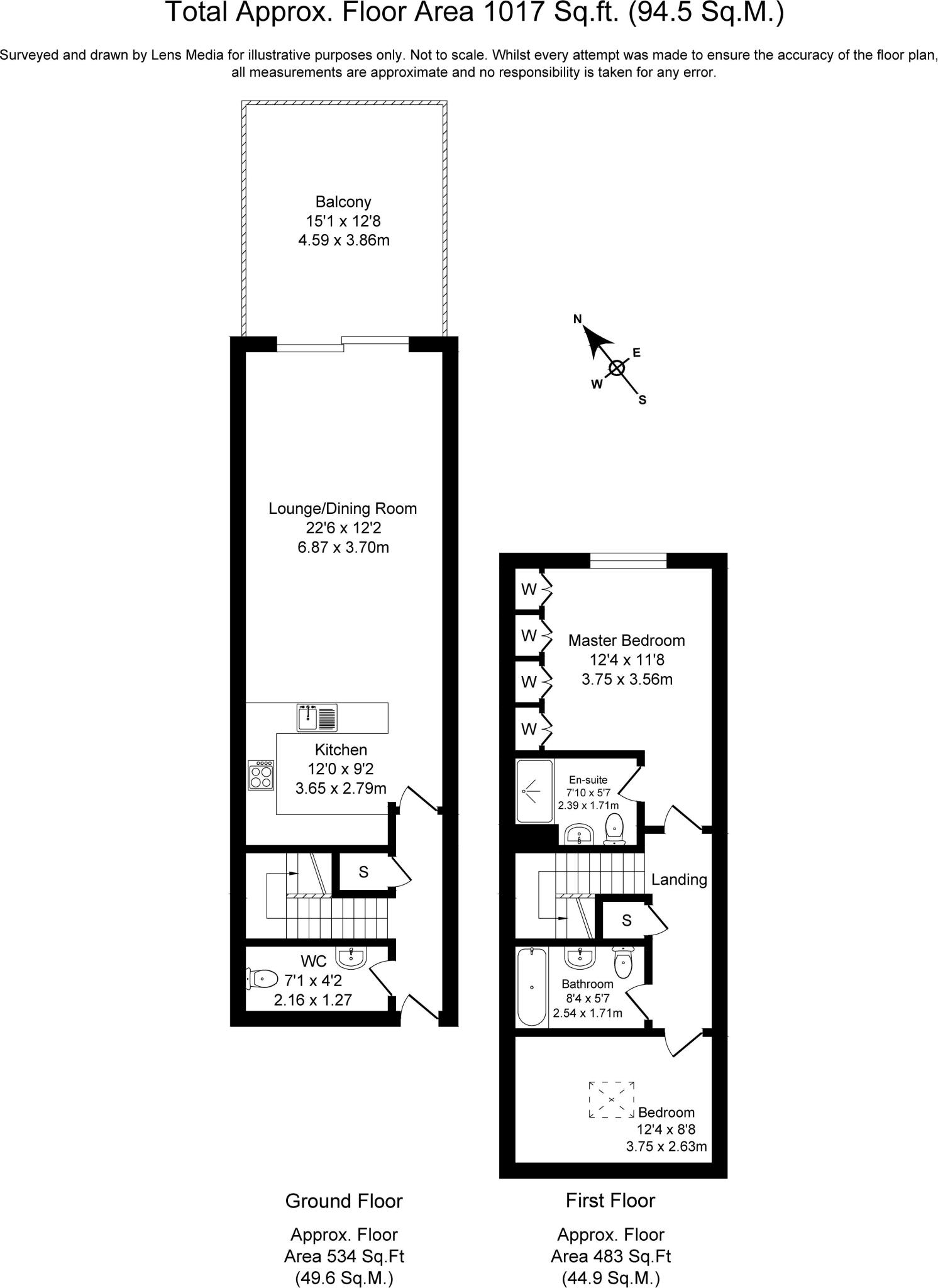
Spacious duplex penthouse over 1,015 sq ft with dual-level layout
15' sun terrace with new composite decking and countryside views
22' open-plan living room great for entertaining and light
Two double bedrooms; principal bedroom with en-suite shower
Grade II listed conversion — period character, restrictions on changes
Service charge £4,547.04 p.a. (above-average) and small ground rent £150 p.a.
Electric storage heating — may increase running costs versus gas
Secure gated development with allocated indoor parking
Set within the striking Grade II listed Holden Mill, this duplex penthouse occupies over 1,015 sq ft of well-proportioned living arranged across two levels. The 22' open-plan living area flows to a 15' sun terrace with new composite decking and elevated countryside views — a rare private outdoor space for apartment living. Two double bedrooms both have fitted wardrobes; the principal suite includes an en-suite shower room. Secure, allocated indoor parking and gated communal gardens add convenience and peace of mind.
The interior blends retained industrial character — exposed brick and cast-iron details — with contemporary fittings, including a modern integrated kitchen and fast broadband. The apartment is lift-served and has generous storage, a ground-floor welcome and a flexible layout that suits couples, families or professionals wanting a central-but-tranquil home. Transport links into Bolton and direct A666 access to the motorway make commuting to Manchester straightforward.
Buyers should note material factors that affect ownership: the building’s listed status can complicate external alterations and maintenance; the annual service charge is £4,547.04 (above-average) and there is a small ground rent of £150 p.a.; heating is by electric storage radiators, which may be costlier than gas alternatives. The property is leasehold with a long lease (898 years remaining), low flood risk and fast broadband — overall offering a blend of character, space and a desirable outdoor terrace but with running and maintenance costs to consider.
2 bedroom penthouse for sale in Holden Mill, Blackburn Road, Bolton, BL1 — £170,000 • 2 bed • 2 bath • 1055 ft²
3 bedroom penthouse for sale in Holden Mill, Blackburn Road, Bolton, BL1 — £285,000 • 3 bed • 2 bath • 1675 ft²
2 bedroom penthouse for sale in Holden Mill, Blackburn Road, Bolton, BL1 — £235,000 • 2 bed • 2 bath • 1263 ft²
2 bedroom apartment for sale in Holden Mill, Blackburn Road, Bolton, BL1 — £150,000 • 2 bed • 1 bath • 900 ft²
2 bedroom apartment for sale in Holden Mill, Blackburn Road, Bolton, BL1 — £125,000 • 2 bed • 2 bath • 890 ft²
2 bedroom apartment for sale in Holden Mill, Blackburn Road, Bolton, BL1 — £150,000 • 2 bed • 2 bath • 790 ft²






















































































































































































