Characterful penthouse with generous living space, moorland views and secure indoor parking..
- Duplex penthouse in Grade II listed mill conversion
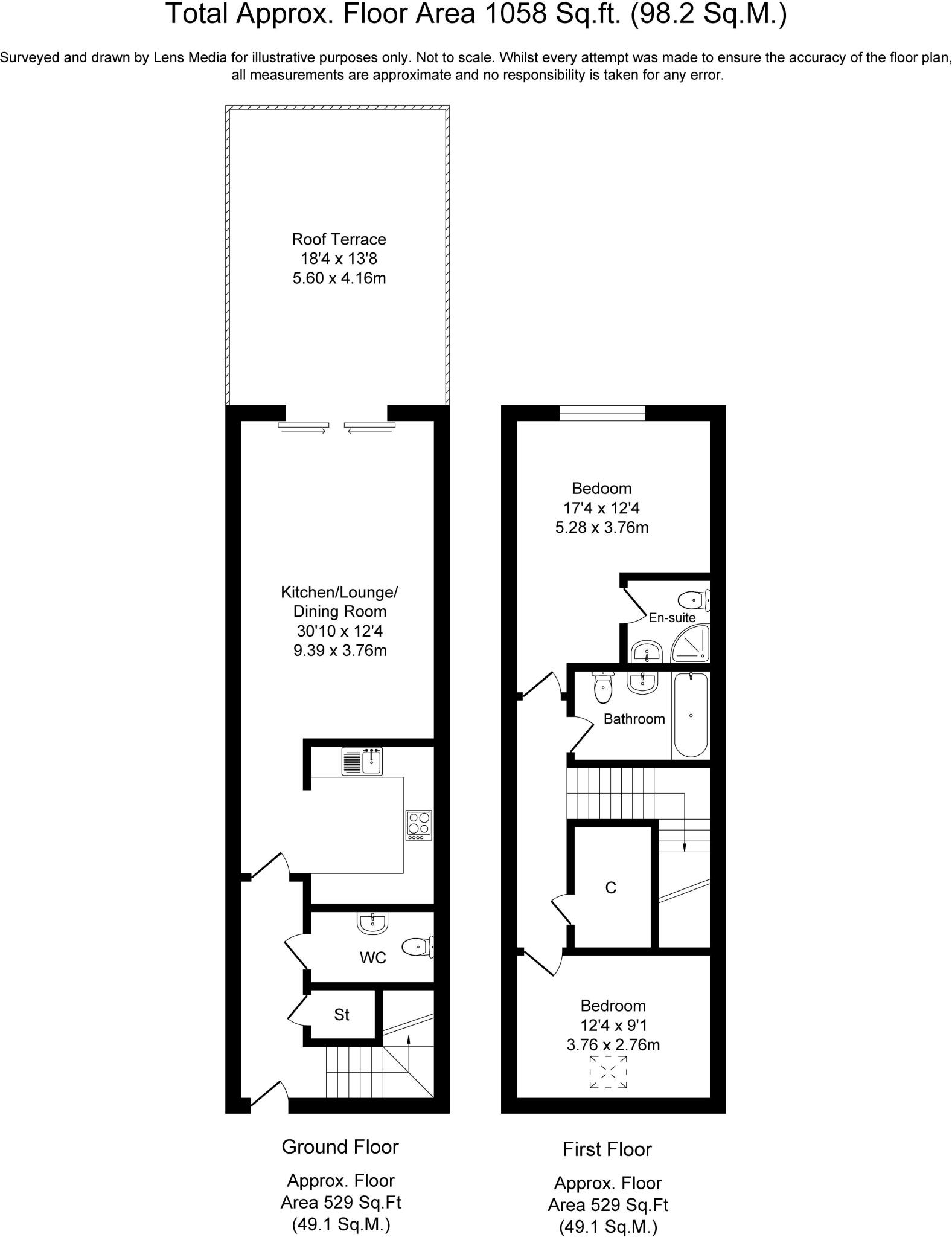
- Generous 30' open-plan living area, high ceilings and large windows
- 18' west-facing sun terrace with new composite decking and moorland views
- Two double bedrooms; principal bedroom with en-suite and fitted wardrobes
- Secure gated development with allocated indoor parking
- Long lease (≈898 years) and no onward chain
- Service charge high at £4,372.08pa; ground rent £150pa
- Electric room heating (no gas central heating) may raise running costs
A striking duplex penthouse set within Holden Mill, a Grade II listed former cotton mill converted into The Cottonworks. The apartment offers an airy 30' open-plan living space, a modern fitted kitchen with integrated appliances, and two double bedrooms with built-in wardrobes. The principal bedroom has an en-suite and both rooms sit on the upper level for privacy.
The 18' west-facing sun terrace with new composite decking captures afternoon sun and provides wide moorland views towards Winter Hill — a rare private outdoor space at this height. Secure gated access, beautifully kept communal grounds and an allocated indoor parking space add convenience and a feeling of exclusivity.
Practical points are straightforward: the lease is long (around 898 years remaining), there is no onward chain, and the apartment is presented in move-in condition. Buyers should note the property’s Grade II listed status may restrict some alterations, and the annual service charge is above average at £4,372.08. Heating is electric (room heaters) rather than gas central heating, which may affect running costs for some buyers.
This penthouse will suit anyone seeking characterful, low-maintenance living with strong transport links into Bolton and Manchester. It offers a lifestyle-focused home rather than a turnkey modern house — ideal for buyers prioritising space, views and unique period character over a traditional suburban layout.
2 bedroom penthouse for sale in Holden Mill, Blackburn Road, Bolton, BL1 — £150,000 • 2 bed • 2 bath • 1015 ft²
3 bedroom penthouse for sale in Holden Mill, Blackburn Road, Bolton, BL1 — £285,000 • 3 bed • 2 bath • 1675 ft²
2 bedroom penthouse for sale in Holden Mill, Blackburn Road, Bolton, BL1 — £235,000 • 2 bed • 2 bath • 1263 ft²
2 bedroom apartment for sale in Holden Mill, Blackburn Road, Bolton, BL1 — £165,000 • 2 bed • 2 bath • 1295 ft²
2 bedroom apartment for sale in Holden Mill, Blackburn Road, Bolton, BL1 — £150,000 • 2 bed • 1 bath • 900 ft²
2 bedroom apartment for sale in Holden Mill, Blackburn Road, Bolton, BL1 — £125,000 • 2 bed • 2 bath • 890 ft²






















































































































































































