Private front and rear gardens with generous open-plan living — convenient Camberwell location.
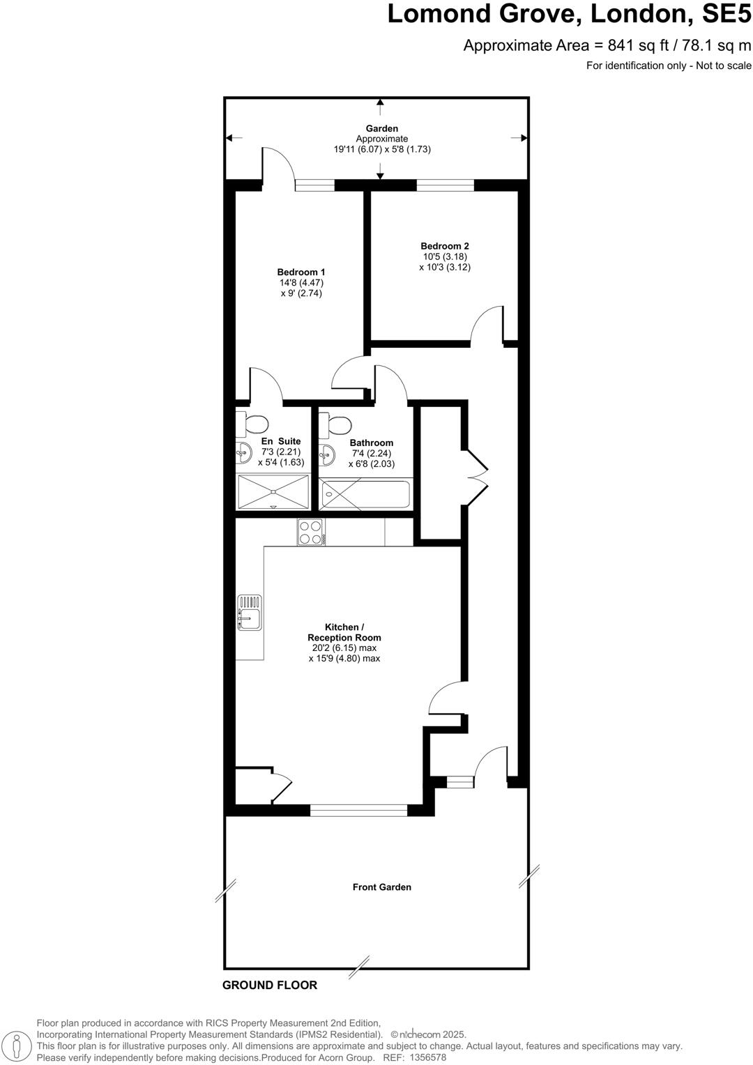
- 841 sqft ground-floor apartment with private front and rear gardens
- Two double bedrooms, principal with ensuite bathroom
- Bright open-plan kitchen/reception, good for entertaining
- Long lease (over 240 years remaining)
- Service charge £850 per annum; Council Tax moderate
- Ground rent shown as £4,000 per annum — confirm details
- Energy Rating B; gas boiler and radiators
- Recorded crime above local average; area classified as deprived
A bright, modern two-bedroom ground-floor apartment arranged over a generous 841 sqft. The open-plan kitchen/reception creates a sociable living space ideal for hosting, and both bedrooms are doubles, with an ensuite to the principal. The apartment benefits from a private front door and direct access to a rear garden, plus an additional small front garden — rare for a ground-floor flat.
Practical ownership is straightforward: a long lease (over 240 years remaining), service charges of £850 per annum and an Energy Rating of B. Heating is by mains gas boiler and radiators; flooding risk is very low. Transport links are good, with Denmark Hill Overground nearby and frequent buses into central London, and Burgess Park and local shops are within easy walking distance.
Buyers should note material local-context factors: recorded crime is above average and the wider area scores as relatively deprived. There is also an annual ground rent figure shown at £4,000 per annum in the provided details — confirm the correct figure and any future review terms before committing. Council tax is moderate. Overall this apartment suits buyers seeking roomy, low-maintenance modern living with outdoor space and long-lease security, but who are comfortable living in a busier urban neighbourhood.
2 bedroom apartment for sale in Lomond Grove, Camberwell, London, SE5 — £490,000 • 2 bed • 2 bath • 773 ft²
2 bedroom apartment for sale in Peckham Road, London, SE5 — £365,000 • 2 bed • 1 bath • 593 ft²
2 bedroom flat for sale in Coldharbour Lane, London, SE5 — £425,000 • 2 bed • 1 bath • 570 ft²
2 bedroom apartment for sale in Camberwell New Road, London, SE5 — £400,000 • 2 bed • 1 bath • 1095 ft²
2 bedroom flat for sale in New Church Road, London, SE5 — £550,000 • 2 bed • 2 bath • 872 ft²
2 bedroom apartment for sale in Peckham Road, London, SE5 — £375,000 • 2 bed • 1 bath • 714 ft²


















































































