Spacious family home with large sunny garden and garage.
Extended five-bedroom detached house with versatile layout
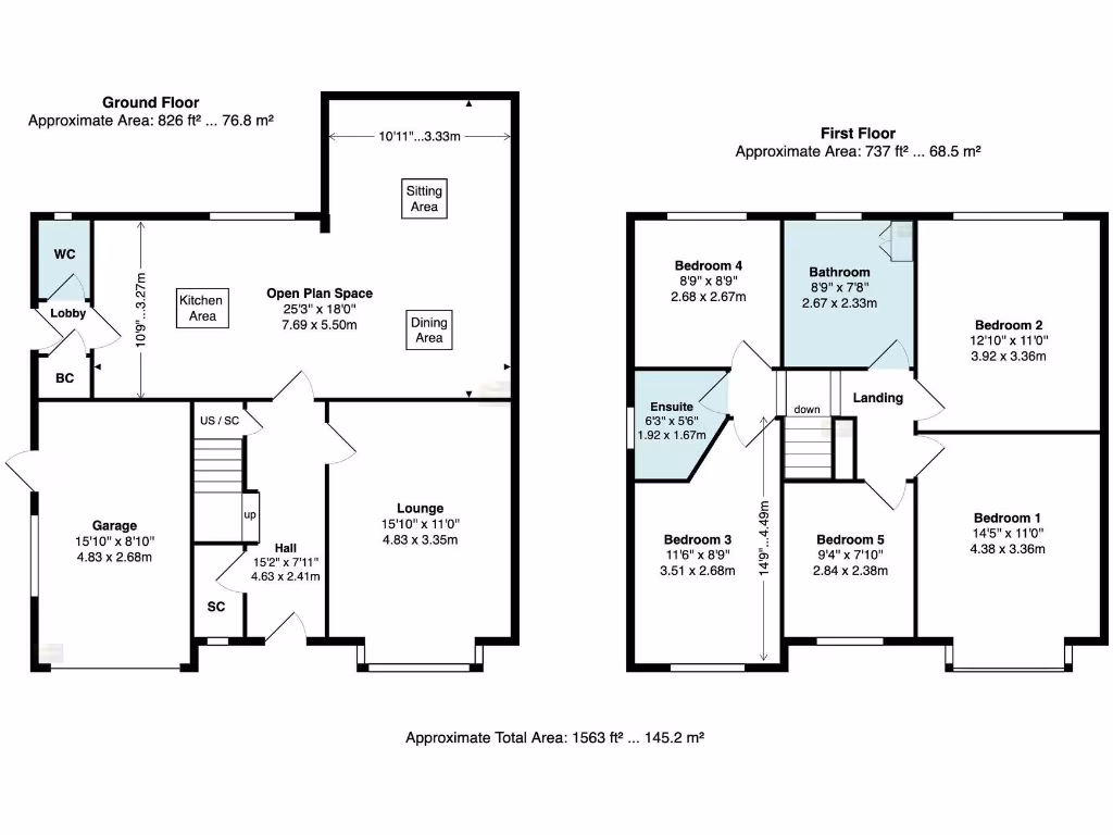
Set on a popular Bramhall street, this extended five-bedroom detached house suits families seeking space, good schools and a sunny rear garden. The home’s flexible layout centres on a large open-plan family dining kitchen with separate lounge, plus a downstairs WC and generous built-in storage — practical for everyday family life.
The south-west facing landscaped garden catches afternoon and evening light, ideal for children and outdoor entertaining. Driveway parking and an attached garage add convenience, while the property’s solid mid-20th-century construction and filled cavity walls give a reassuring feel. The long lease (circa 936 years) and low ground rent (£16 pa) are practical benefits for buyers wary of leasehold costs.
Location is a clear strength: low local crime, fast broadband, excellent mobile signal and several highly rated primary and secondary schools nearby. These features support family routines and resale appeal in this affluent area.
Buyers should note the property is leasehold and has an EPC rating of D. Council tax is above average. Some internal elements and services (glazing install dates not recorded, general modernisation in places possible) may need attention or updating to suit individual tastes.
4 bedroom detached house for sale in Darwin Grove, Bramhall, SK7 — £750,000 • 4 bed • 2 bath • 936 ft²
4 bedroom detached house for sale in Southern Crescent, Bramhall, SK7 — £845,000 • 4 bed • 1 bath • 2249 ft²
5 bedroom detached house for sale in BRAMLEY ROAD, Bramhall SK7 2DW, SK7 — £875,000 • 5 bed • 3 bath • 2589 ft²
4 bedroom detached house for sale in Bramley Road, Bramhall, SK7 — £775,000 • 4 bed • 3 bath • 2124 ft²
5 bedroom semi-detached house for sale in Ashley Drive, Bramhall, SK7 — £550,000 • 5 bed • 2 bath • 1467 ft²
3 bedroom detached house for sale in Meadway, Bramhall, SK7 — £550,000 • 3 bed • 3 bath • 1404 ft²






























































































