Spacious extended family home near Bramhall Village and Moss Hey Primary School.
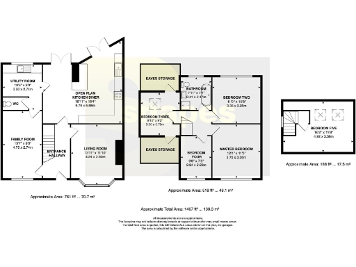
Substantially extended five-bedroom semi-detached house
This substantially extended five-bedroom semi-detached home sits on a private plot close to Bramhall Village. The ground floor offers flexible living with a bay-front living room, separate family/study room and a bright open-plan kitchen-diner with two sets of French doors onto the garden. A utility and ground-floor WC add everyday practicality.
Four bedrooms and a stylish family bathroom occupy the first floor, with a fifth bedroom on the second floor providing a private guest suite or home office. Outside there is a good-sized rear garden with decked entertaining space and a wide driveway providing ample off-street parking.
Practical details: the property is leasehold with a very long term (circa 979 years reported) and a low ground rent of £17 p.a. The house dates from the mid-20th century, has double glazing (install date not specified) and cavity walls which are assumed uninsulated — worth checking if you prioritise thermal performance. Council tax is described as moderate and there is no reported flood risk.
This home will suit growing families who want direct access to Moss Hey Primary School catchment and the amenities of Bramhall Village. Buyers wanting a turnkey, highly insulated energy-efficient home should factor in potential updates (insulation, certificate checks and usual mid-century maintenance). A pre-purchase survey is recommended to confirm construction and service details.
3 bedroom semi-detached house for sale in Dalston Drive, Bramhall, SK7 — £595,000 • 3 bed • 1 bath • 1195 ft²
6 bedroom detached house for sale in Moss Bank, Bramhall, SK7 — £700,000 • 6 bed • 2 bath • 1784 ft²
3 bedroom semi-detached house for sale in Canberra Road, Bramhall, SK7 — £400,000 • 3 bed • 1 bath • 918 ft²
3 bedroom semi-detached house for sale in Nursery Road, Cheadle Hulme, SK8 — £465,000 • 3 bed • 1 bath • 1314 ft²
5 bedroom semi-detached house for sale in Totnes Avenue, Bramhall, SK7 — £400,000 • 5 bed • 3 bath • 1288 ft²
3 bedroom detached house for sale in Eskdale Avenue, Bramhall, Stockport, SK7 — £500,000 • 3 bed • 1 bath • 1349 ft²














































































