Large renovated 4-bed home with superb garden and luxury master suite, chain free.
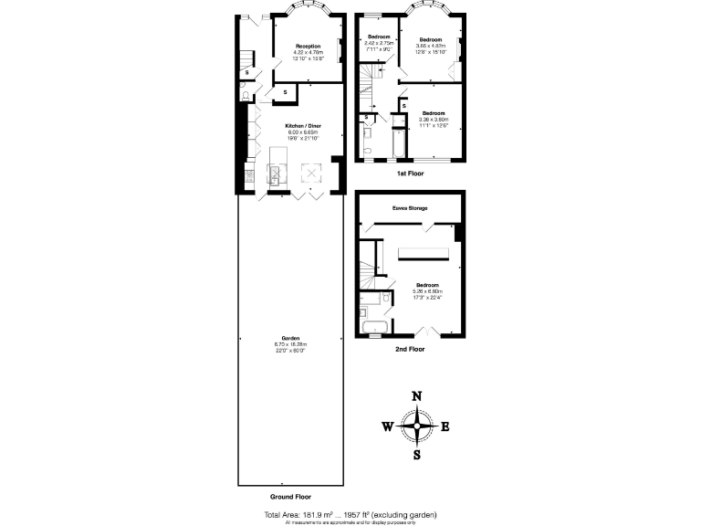
Nearly 1,957 sq ft across extended mid-terrace layout
Set across nearly 2,000 sq ft, this newly renovated 1920s mid-terrace has been fully extended to provide generous family accommodation and a luxurious top-floor master suite. Period features such as high ceilings, a bay-fronted living room and decorative mouldings sit alongside a contemporary open-plan kitchen/dining area that opens onto a large private garden — ideal for children and outdoor entertaining.
Arranged over multiple floors, the house offers three double bedrooms on the first and second levels, plus a further bedroom/study and two bathrooms. The large master suite occupies the whole top floor and includes a dressing area and high-quality finishes, creating a peaceful retreat from busy family life. Off-street parking and good transport links to Kensal Green and Kensal Rise add practical everyday convenience.
Important practical points: the property is chain free and presented in excellent decorative condition following a recent renovation, but some original construction features remain — the solid brick walls are assumed to be without added cavity insulation, and the double glazing was installed prior to 2002. Council tax is above average for the area. These are worth noting if you are budget-conscious or planning further energy-efficiency works.
Overall, this is a spacious, move-in ready family home in a sought-after Kensal Rise location, close to parks, schools and College Road amenities. It will suit families wanting period character combined with modern living, with scope to tailor energy-efficiency improvements in future.
4 bedroom end of terrace house for sale in Ashburnham Road, London, NW10 — £1,995,000 • 4 bed • 2 bath • 2141 ft²
4 bedroom house for sale in Doyle Gardens, London, NW10 — £1,450,000 • 4 bed • 2 bath • 1700 ft²
5 bedroom house for sale in Chamberlayne Road, London NW10 — £1,595,000 • 5 bed • 3 bath • 2166 ft²
3 bedroom terraced house for sale in Bathurst Gardens, Kensal Rise, NW10 — £1,300,000 • 3 bed • 2 bath • 1431 ft²
4 bedroom semi-detached house for sale in Hardinge Road, London, NW10 — £1,699,950 • 4 bed • 1 bath • 1840 ft²
5 bedroom terraced house for sale in All Souls Avenue, Kensal Rise, London, NW10 — £1,350,000 • 5 bed • 2 bath • 1987 ft²






























































