Large town-centre home with private walled garden and separate office.
- Almost 1,600 sq ft across ground and lower-ground levels
- Freehold tenure with private walled garden and rear access
- Dedicated insulated garden office with power and Wi‑Fi
- Period features: bay window, cornicing, original Victorian brick
- Boarded insulated loft for useful additional storage
- High flood risk — likely higher insurance and mitigation needed
- Solid brick walls (assumed no cavity insulation) — potential energy works
- Council tax above average; service charge approx. £1,000 (details unknown)
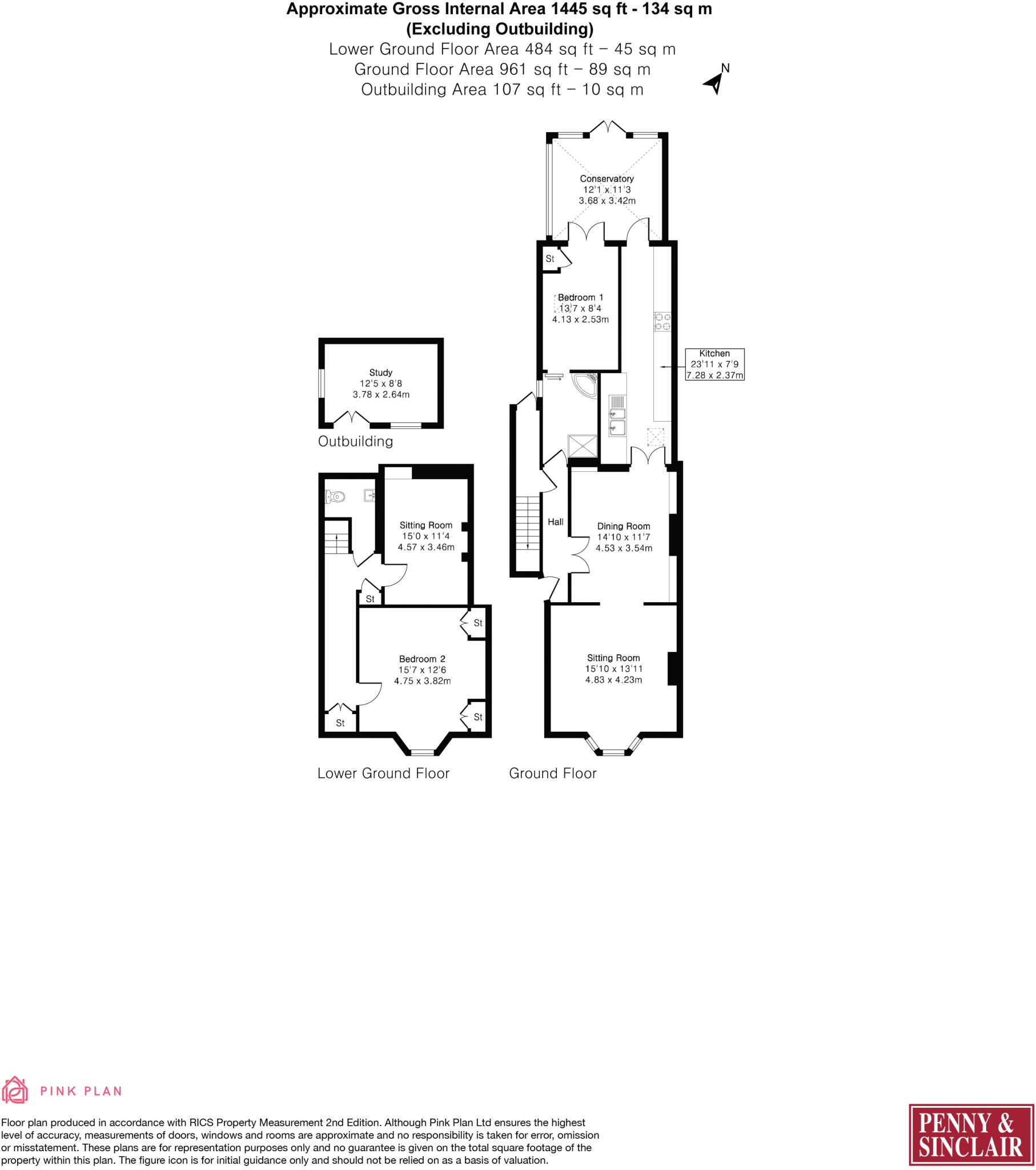
This spacious three-bedroom freehold apartment occupies almost 1,600 sq ft in a handsome Victorian mid-terrace, arranged over ground and lower-ground levels. Period features — bay window, cornicing and original brick walls — combine with contemporary touches in the fitted kitchen and a fully insulated garden office. The generous walled garden with rear access to Reading Road is a rare town-centre asset and the separate office is ideal for regular home working.
Accommodation is flexible: a formal dining room and separate sitting room sit alongside a modern kitchen and conservatory, while the lower-ground level provides a master bedroom with good storage, a further double bedroom and a re-fitted WC. The property benefits from double glazing, boarded/insulated loft storage and mains gas central heating. EPC C suggests reasonable energy performance for a pre-1900 building.
Notable practical points are stated plainly: the location is in a high flood-risk area, which will affect insurance and may require mitigation. The building has solid brick walls with no assumed cavity insulation and some period fabric may need ongoing maintenance. Council tax is above average and a service charge of around £1,000 is recorded (details unknown).
This apartment will suit downsizers or professionals seeking a large, characterful town-centre home with dedicated workspace and garden. Buyers should factor in flood-insurance costs and a potential programme of sensitive improvement to enhance thermal performance while retaining the period features.
3 bedroom apartment for sale in Station Road, Henley-On-Thames, Oxfordshire, RG9 — £825,000 • 3 bed • 2 bath • 1660 ft²
3 bedroom terraced house for sale in Queen Streeet, RG9 1AP, RG9 — £1,000,000 • 3 bed • 1 bath • 1393 ft²
3 bedroom terraced house for sale in Reading Road, Henley-On-Thames, RG9 — £545,000 • 3 bed • 1 bath • 942 ft²
3 bedroom terraced house for sale in Gravel Hill, RG9 2EE, RG9 — £645,000 • 3 bed • 1 bath • 1016 ft²
3 bedroom apartment for sale in Brakspear Mews, New Street, RG9 — £999,000 • 3 bed • 2 bath • 1500 ft²
2 bedroom flat for sale in River Terrace, Henley On Thames, RG9 — £465,000 • 2 bed • 1 bath • 700 ft²






















































































