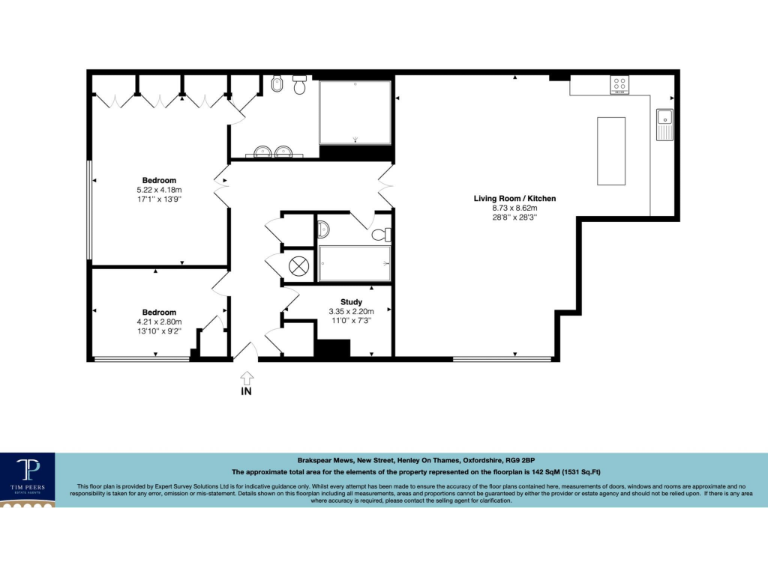
Spacious central home with private courtyard and two parking spaces.
- Large principal bedroom suite with courtyard access
- Open-plan living with feature floor-to-ceiling windows
- Private walled courtyard garden, sunny aspect
- Secure gated development with two allocated parking spaces
- Underfloor electric heating and living-area air conditioning
- EPC D; solid brick walls assumed uninsulated (energy upgrade potential)
- Medium flood risk and local area recorded higher crime
- Service charge approx £2,000; council tax band E
Located within the gated, historic Brakspear Mews, this large 3-bedroom apartment blends period character with modern specification. A generous principal bedroom suite, open-plan living and a private walled courtyard make it a comfortable family home with excellent entertaining space.
Practical comforts include electric underfloor heating throughout, air conditioning in principal living areas, double glazing and allocated parking for two cars within secure gates. The property sits on a long lease (share of freehold) and benefits from planned EV charging points.
Buyers should note some measurable drawbacks: the EPC is rated D, the building’s solid brick walls are assumed uninsulated, and the area has a recorded medium flood risk and higher local crime levels. There is an average service charge of £2,000 and council tax is in band E (above average). These factors are important for running costs and long-term energy improvements.
Positioned a short walk from Henley town centre, riverside and highly regarded schools, the apartment suits families who want central, low-maintenance living with easy rail links to Reading, Maidenhead and London. The layout offers potential to personalise finishes and improve energy efficiency over time.
2 bedroom apartment for sale in Station Road, Henley-on-Thames, Oxfordshire, RG9 — £775,000 • 2 bed • 2 bath • 1038 ft²
2 bedroom apartment for sale in Station Road, Henley-on-Thames, Oxfordshire, RG9 — £795,000 • 2 bed • 2 bath • 1062 ft²
3 bedroom flat for sale in Hart Street, Henley-On-Thames, RG9 — £1,200,000 • 3 bed • 2 bath • 2047 ft²
3 bedroom flat for sale in Gardiner Place, Henley-On-Thames, RG9 — £845,000 • 3 bed • 2 bath • 1248 ft²
3 bedroom apartment for sale in Station Road, Henley-On-Thames, Oxfordshire, RG9 — £850,000 • 3 bed • 2 bath • 1660 ft²
3 bedroom semi-detached house for sale in Bell Street Mews, Henley-on-Thames, Oxfordshire, RG9 — £1,150,000 • 3 bed • 3 bath • 1427 ft²


































































































































