Spacious modern family living with garage, garden and great school options.
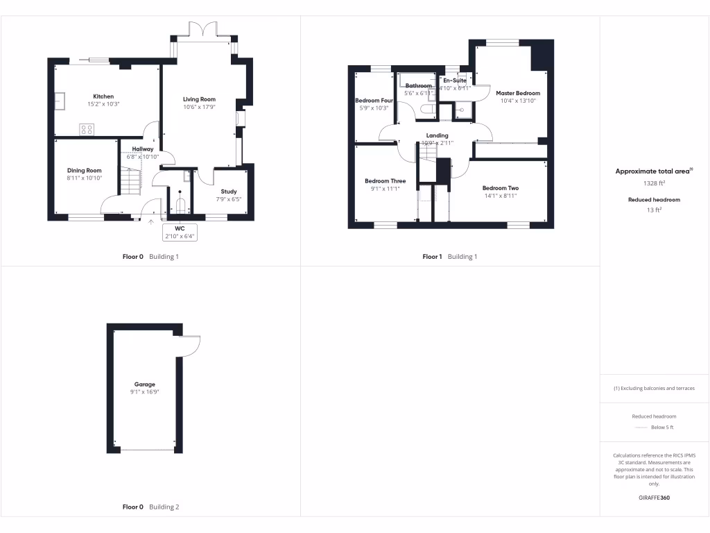
Detached four-bedroom family home with en-suite to master
A well-proportioned four-bedroom detached home in quiet Warfield, built c.1996–2002 and finished with double glazing. The ground floor delivers flexible family space: a bay-fronted living room with French doors to the garden, a separate dining room, kitchen/breakfast room with garden access, plus a handy study and downstairs cloakroom. Upstairs, the master bedroom benefits from an en-suite while three further bedrooms share the family bathroom. A garage and driveway provide secure parking.
The rear garden is private and of a decent size with a paved patio for outdoor dining and a door through to the garage, making it practical for family life and entertaining. The property sits in an affluent, low-crime neighbourhood served by several highly rated schools, fast broadband and good commuter links into Bracknell and surrounding towns.
This freehold house is presented as a solid, modern-traditional family home with standard room proportions across 1,328 sq ft. It will suit buyers seeking move-in-ready accommodation that still offers straightforward scope to personalise or modernise key rooms. There is no known flood risk and the property benefits from mains gas central heating.
Notable practical points: local mobile signal is average and council tax costs are high, which should be factored into running costs. Interiors are described as average-sized throughout, so buyers wanting larger, more expansive rooms should check measurements in person.
4 bedroom detached house for sale in Cleopatra Place, Warfield, Berkshire, RG42 — £750,000 • 4 bed • 2 bath • 1248 ft²
4 bedroom detached house for sale in Ormathwaites Corner, Warfield, Bracknell, Berkshire, RG42 — £800,000 • 4 bed • 2 bath • 1805 ft²
3 bedroom detached house for sale in Horatio Avenue, Warfield, Bracknell, Berkshire, RG42 — £525,000 • 3 bed • 2 bath • 1287 ft²
4 bedroom detached house for sale in Anthony Wall, Warfield, Berkshire, RG42 — £725,000 • 4 bed • 2 bath • 1400 ft²
4 bedroom detached house for sale in Sylverns Court, Warfield, RG42 — £700,000 • 4 bed • 2 bath • 1432 ft²
3 bedroom detached house for sale in All Saints Rise, Warfield, Bracknell, RG42 — £535,000 • 3 bed • 2 bath • 1053 ft²






































































