Modern two-bedroom with balcony, parking, and quick access to university and town centre.
Top-floor apartment with balcony and Hanley Park views
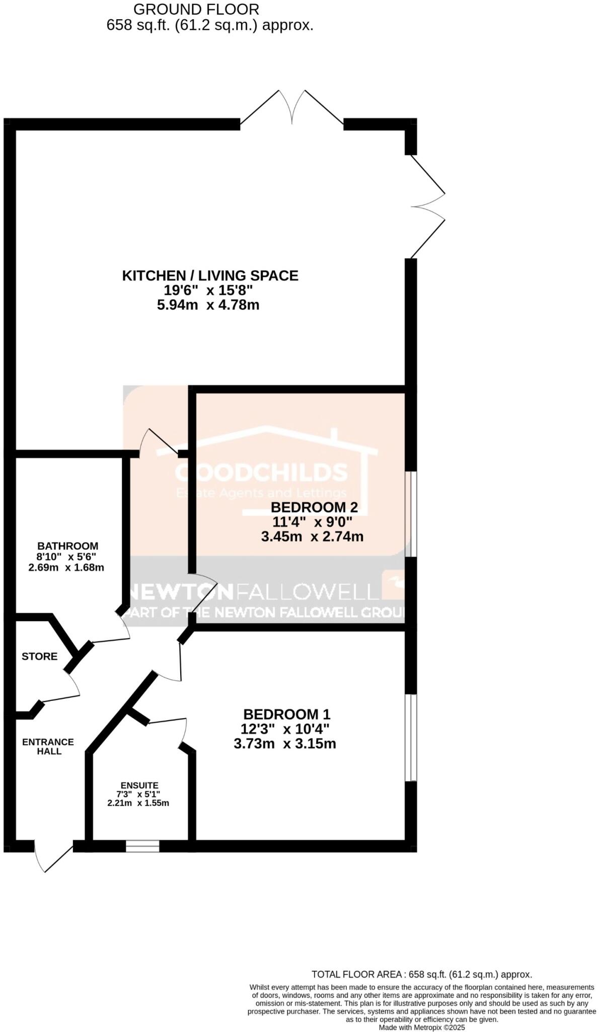
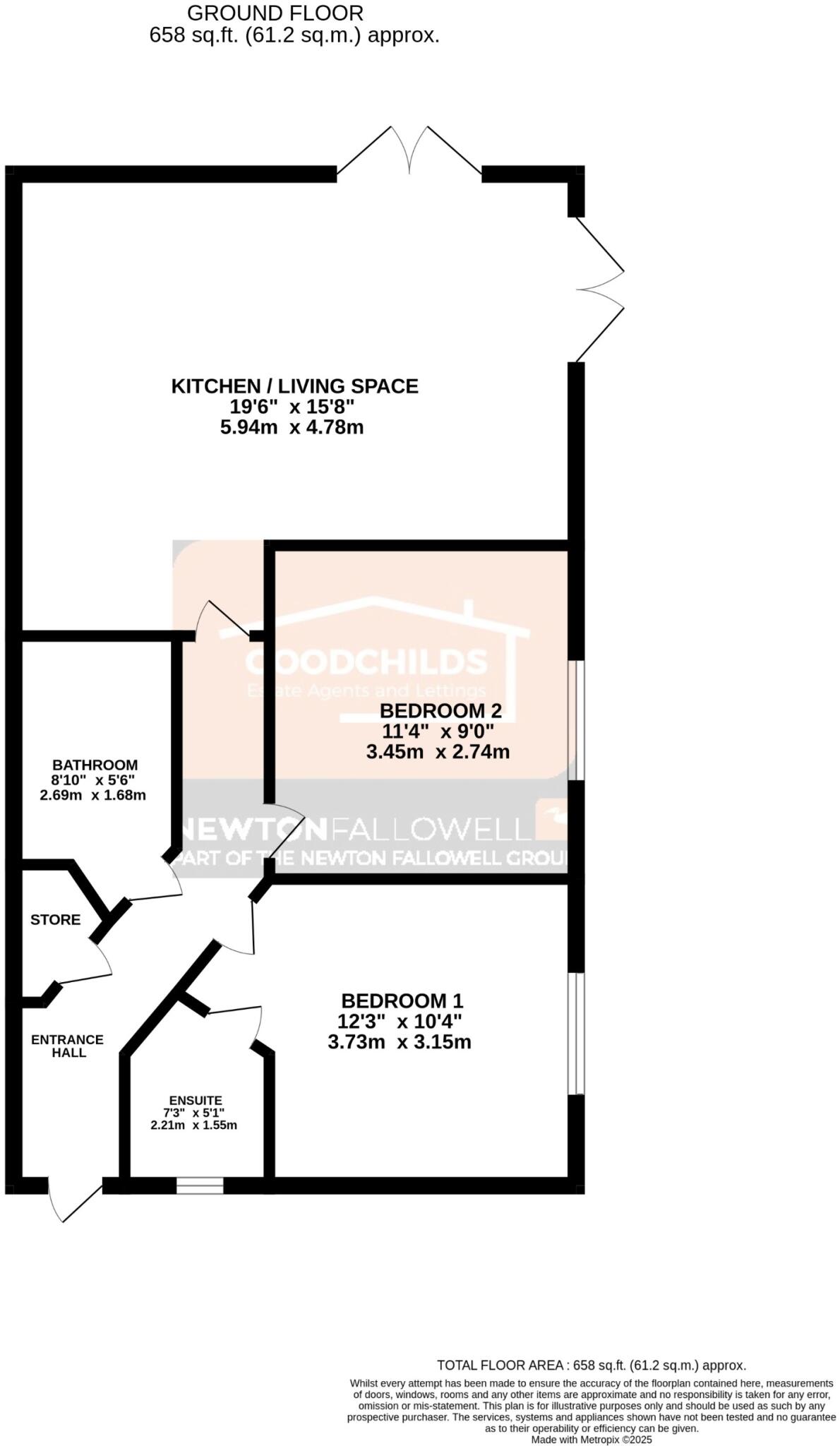
Open-plan kitchen/living room with fitted appliances and breakfast bar
Master bedroom with private ensuite; two double bedrooms total
Lift access and allocated off-street parking space
Long lease: 143 years remaining; leasehold tenure
Service charge approx. £1,732 pa; ground rent £226 pa
Located near Staffordshire University and Hanley town centre
Higher local crime levels and slow broadband speeds
This top-floor, two-bedroom apartment sits directly opposite Hanley Park and offers a bright open-plan kitchen/living space that opens onto a balcony. The contemporary layout includes a master bedroom with an ensuite, a second double bedroom, and a separate family bathroom — suited to first-time buyers or investors seeking easy-to-manage accommodation.
Practical details are straightforward: long lease (143 years remaining), allocated off-street parking, and lift access to the apartment. The kitchen is fitted with appliances and a breakfast bar, creating a social hub for everyday life and entertaining. Being chain-free makes an expedited sale possible.
Be aware of material considerations: the property is in a cosmopolitan student neighbourhood within a wider deprived area and records higher local crime levels. Broadband speeds are reported as slow. There is an annual service charge (approx. £1,732) and a ground rent (£226), reflecting its leasehold status.
For buyers prioritising location, the flat delivers quick access to Staffordshire University and Hanley town centre, plus pleasant park-facing outlooks. Investors may value reliable rental demand from students and town-centre workers, while first-time buyers will appreciate the manageable size and contemporary finish — balanced against running costs and local area factors.
2 bedroom apartment for sale in Caldon Quay, Hanley, Stoke-on-Trent, ST1 — £125,000 • 2 bed • 2 bath • 658 ft²
2 bedroom flat for sale in Caldon Quay, Hanley, Stoke-on-Trent, ST1 — £110,000 • 2 bed • 2 bath • 658 ft²
2 bedroom flat for sale in Norville Drive, Hanley, Stoke-on-Trent, ST1 — £125,000 • 2 bed • 2 bath • 697 ft²
2 bedroom flat for sale in Norville Drive, Stoke-on-trent, ST1 — £130,000 • 2 bed • 2 bath • 742 ft²
2 bedroom apartment for sale in Poundlock Avenue, Hanley, Stoke on Trent, ST1 3RN, ST1 — £80,000 • 2 bed • 1 bath
2 bedroom apartment for sale in Glebedale Road, Stoke-on-Trent, Staffordshire, ST4 — £80,000 • 2 bed • 1 bath • 931 ft²














































