**Standout Features:**
- Rare building plot with full planning permission.
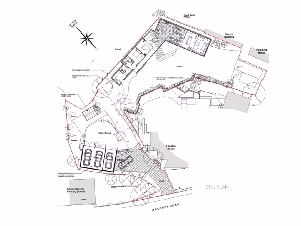
- Contemporary design with approximately 2,758 sq ft of living space.
- Extensive open-plan layout featuring 5 double bedrooms and 3 bathrooms.
- Additional structures include a triple garage, garage studio, garden room, greenhouse, and potting shed.
- Stunning views over open countryside, set in an exclusive village location near South Kilworth.
**Summary:**
Discover an exceptional opportunity to create your dream home on this superb building plot located in the charming village of South Kilworth, Leicestershire. With full planning permission in place, envision a striking contemporary residence that boasts an expansive internal layout of approximately 2,758 sq ft, featuring five generously sized double bedrooms and three modern bathrooms. The design promotes an abundance of natural light and offers breathtaking countryside views, making it an ideal setting for families or those seeking a peaceful retreat.
The property includes a spacious triple garage and versatile outbuildings—perfect for a studio or storage. The plot is well-located near local amenities, including a highly regarded school, a butcher, and recreational facilities. While the area benefits from low crime rates and a tranquil environment, it also allows for ease of access to Market Harborough and excellent transport links. Don’t miss out on this unique opportunity to own a slice of rural paradise, where your vision can flourish in a serene setting. This plot won't last long—secure your future in one of South Leicestershire's most desirable villages today!
Plot for sale in Foxton Road, Lubenham, Market Harborough, LE16 — £850,000 • 5 bed • 5 bath • 7400 ft²
Land for sale in Bumble Bee Lane, Sharnford, Hinckley, Leicestershire, LE10 — £1,000,000 • 1 bed • 1 bath • 5124 ft²
4 bedroom country house for sale in Welford Road, South Kilworth, LE17 — £1,295,000 • 4 bed • 3 bath • 3176 ft²
Land for sale in Harborough Road, Leicester, LE8 — £350,000 • 1 bed • 1 bath
5 bedroom detached house for sale in Broad Lane, Husbands Bosworth, Lutterworth, LE17 — £910,000 • 5 bed • 4 bath • 2520 ft²
Plot for sale in Bumble Bee Lane, Leicestershire, LE10 — £1,000,000 • 4 bed • 4 bath • 5000 ft²






















































































