Large freehold plot with full planning for a four-bedroom family home..
Full planning permission for a four-bedroom detached home
Substantial, very large freehold plot in Kibworth Harcourt
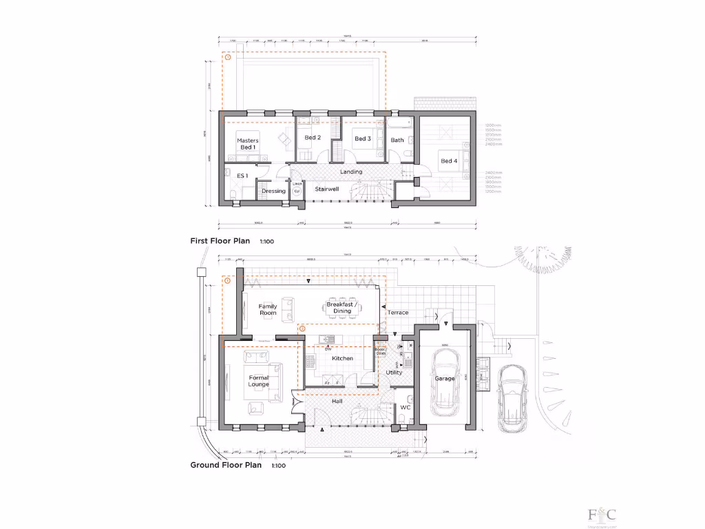
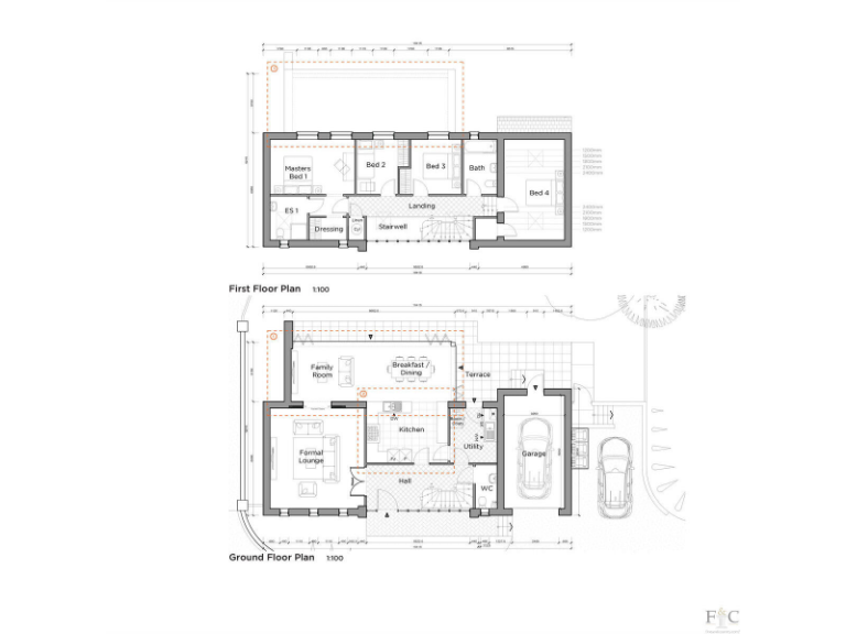
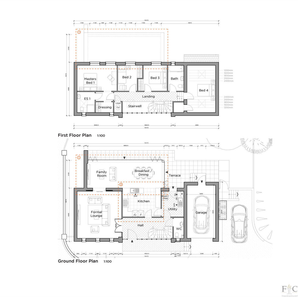
Approved design: master suite, open-plan family space, formal lounge
Integral garage, private driveway and room for landscaped gardens
Building contract option available to manage construction
Self-build required — construction costs and timescales apply
Fast broadband; mobile signal and local crime rated average
No existing dwelling on site — land only, not immediately habitable
This is a substantial freehold building plot in sought-after Kibworth Harcourt with full planning permission for a four-bedroom detached house. The approved design delivers a master suite with dressing area and en-suite, three further bedrooms, open-plan kitchen/dining/family space, formal lounge, utility, cloakroom and an integral garage with private driveway.
The plot is large and positioned within a prosperous village setting with fast broadband, good local schools and village amenities nearby. It suits buyers wanting to self-build or to commission a contractor; a building contract option is available to guide the construction if you prefer a managed route.
Buyers should allow for the time, cost and project management involved in delivering a new home from a bare plot. There is no existing residential accommodation on site—this is land with approved plans—so immediate habitation is not possible. Mobile signal and local crime are reported as average; general area indicators show very affluent, rural white-collar demographics.
Overall this is a rare opportunity to construct a contemporary family house in a prestigious village location, but it requires commitment to a full build programme and associated costs.
Plot for sale in Development Opportunity off Back Lane, Burton Overy, Leicestershire, LE8 — £250,000 • 1 bed • 1 bath • 2239 ft²
5 bedroom detached house for sale in Harborough Road, Kibworth Harcourt Leicester, LE8 — £1,250,000 • 5 bed • 3 bath • 2751 ft²
Land for sale in Station Lane, Scraptoft, LE7 — £275,000 • 1 bed • 1 bath • 17424 ft²
Land for sale in Superior Building Plot, Walcote Road, South Kilworth, LE17 — £400,000 • 1 bed • 1 bath • 2758 ft²
4 bedroom detached house for sale in Cuckoo Drive, Kibworth Beauchamp, LE8 — £650,000 • 4 bed • 4 bath • 1765 ft²
4 bedroom detached house for sale in Links Road, Kibworth, Leicester, LE8 — £440,000 • 4 bed • 2 bath • 1075 ft²


















