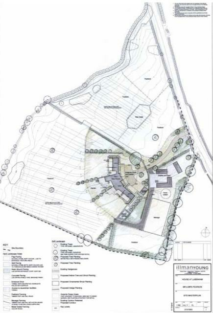
**Standout Features:**
- Expansive plot of approximately 11.5 acres.
- Full planning permission granted for a contemporary 5-bedroom home (7400 sq. ft.).
- Additional plans for wings, annex accommodation, and an internal swimming pool.
- South-facing position with panoramic views towards Foxton Locks.
- Ideal for staged development based on individual preferences.
- Located in the picturesque village of Lubenham, only 2 miles from Market Harborough.
**Summary:**
Seize this unique opportunity to develop an exceptional property on a substantial 11.5-acre plot in the charming village of Lubenham. With full planning permission (Ref: 17/01307/FUL) already in place, you can create a stunning contemporary home that boasts a remarkable total space of 7400 sq. ft., featuring five ensuite bedrooms, an open-plan living area, and the potential for additional wings and a luxurious swimming pool. Enjoy breathtaking panoramic views from your future residence, situated down a long driveway in a serene south-facing location.
This property is perfect for both families seeking a spacious home and investors looking for a one-of-a-kind development project. The village offers essential amenities, including a highly-rated local primary school and is conveniently located just 2 miles from Market Harborough, providing easy train access to London. Although there are some concerns, such as high local crime rates, the potential for luxurious and sustainable living here cannot be overstated. Don't miss out on this one-of-a-kind opportunity to build your dream home in a desirable countryside setting!
Land for sale in Superior Building Plot, Walcote Road, South Kilworth, LE17 — £400,000 • 1 bed • 1 bath • 2758 ft²
Land for sale in Bumble Bee Lane, Sharnford, Hinckley, Leicestershire, LE10 — £1,000,000 • 1 bed • 1 bath • 5124 ft²
Land for sale in Land at Foxton Road, Foxton, LE16 — £200,000 • 1 bed • 1 bath
4 bedroom detached house for sale in Main Street, Foxton, LE16 — £695,000 • 4 bed • 3 bath
6 bedroom detached house for sale in Benscliffe Road, Newtown Linford, LE67 — £1,250,000 • 6 bed • 6 bath • 8307 ft²
Plot for sale in Development Opportunity off Back Lane, Burton Overy, Leicestershire, LE8 — £250,000 • 1 bed • 1 bath • 2239 ft²














































































