**Standout Features:**
- Prime waterfront location with stunning views of Falmouth Harbour
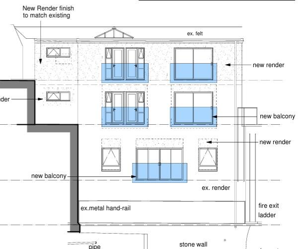
- Planning consent for 7 flats, a retail unit, and basement storage
- Spacious three-story mid-terraced building with substantial square footage (7,114 sq ft total)
- Considerable renovation and extension potential, including a proposed second floor
- Direct access to vibrant Market Street with excellent walkable amenities
**Potential Downsides:**
- Mixed-use zoning might attract foot traffic, impacting privacy or tranquility
- Asset located in a higher crime area, requiring due diligence for safety
- Maintenance may be needed to bring the property up to current regulations and modern standards
This expansive land opportunity at 29-30 Market Street in Falmouth offers an exceptional investment prospect for developers or aspiring home builders. With existing planning permission for conversion into seven residential flats and an active retail space, the property represents a unique canvas for creating sought-after urban living spaces—ideal for the cosmopolitan student and professional demographic that populates the area. Enjoy picturesque harbor views and the vibrant atmosphere of Market Street, with a plethora of amenities just steps away.
For investors, this prime location not only promises strong rental potential but also the possibility for future expansion, given the approved plans for a second story. The substantial layout and desirable setting immerse you in Falmouth's lively community. However, prospective buyers should remain aware of the property's maintenance needs and surroundings that may require added security considerations. Opportunities for development like this are rarer online, so take advantage of this conversion opportunity before it's gone!
Studio apartment for sale in Conversion Opportunity, 29-30 Market Street, Falmouth, TR11 — £1,000,000 • 1 bed • 1 bath • 7114 ft²
High street retail property for sale in , 20 Church Street, Falmouth, TR11 — £375,000 • 1 bed • 1 bath • 2537 ft²
Residential development for sale in Hulls Lane, Falmouth, Cornwall, TR11 3HL, TR11 — £2,000,000 • 1 bed • 1 bath
House for sale in Arwenack Avenue, Falmouth, Cornwall, TR11 3JJ, TR11 — £500,000 • 1 bed • 1 bath • 1324 ft²
Land for sale in Development Opportunity, Marine Crescent, Falmouth, TR11 — £400,000 • 1 bed • 1 bath • 539 ft²
High street retail property for sale in Market Street, Falmouth, Cornwall, TR11 — £750,000 • 1 bed • 1 bath • 14319 ft²






















































