### Property Highlights:
- **Prime Location**: Located on Market Street with direct harbor views.
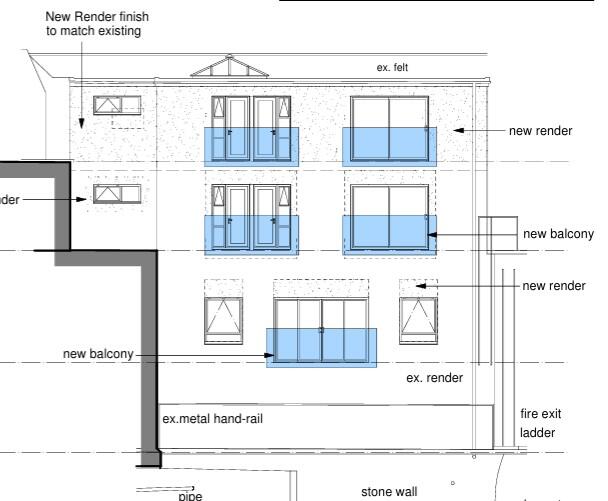
- **Investment Potential**: Planning consent for conversion into 7 flats and a retail unit, ideal for developers.
- **Spacious Layout**: Enormous total area of 7,114 sq ft, offering significant renovation opportunities.
- **Versatile Use**: Perfect for residential and commercial applications, attracting students and professionals alike.
- **Condition**: Requires some renovations, including potential structural repairs, particularly on the roof.
### Summary:
Explore a remarkable investment opportunity in the heart of Falmouth with this expansive three-storey mid-terraced property. With planning consent already in place for the conversion into seven flats and a retail space, this property offers significant potential for future gain, appealing particularly to investors and developers looking to capitalize on the vibrant local market. The stunning harbor views provide a unique charm, while the spacious interior allows for creative design possibilities.
Situated in a bustling urban area, just a stone's throw from essential amenities such as shops, restaurants, and entertainment, this property boasts a prime location that’s walkable from various conveniences. While some maintenance and structural work is required, including updates to the roof, the existing layout and substantial size present an enticing opportunity to craft modern living spaces amidst a thriving community. With demand for housing in student-friendly neighborhoods at an all-time high, this property won’t stay on the market long—seize the chance to transform a classic structure into a lucrative asset!
Land for sale in Conversion Opportunity, 29-30 Market Street, Falmouth, TR11 — £1,000,000 • 1 bed • 1 bath • 7114 ft²
House for sale in Arwenack Avenue, Falmouth, Cornwall, TR11 3JJ, TR11 — £500,000 • 1 bed • 1 bath • 1324 ft²
High street retail property for sale in , 20 Church Street, Falmouth, TR11 — £375,000 • 1 bed • 1 bath • 2537 ft²
High street retail property for sale in 54/55 Church Street, Falmouth, Cornwall, TR11 — £390,000 • 1 bed • 1 bath • 2426 ft²
1 bedroom flat for sale in High Street, Falmouth, TR11 — £180,000 • 1 bed • 1 bath • 544 ft²
Office for sale in Arwenack Avenue, Falmouth, Cornwall, TR11 3JJ, TR11 — £500,000 • 1 bed • 1 bath • 1324 ft²






















































