Spacious period two‑bed with terrace and upcoming roof garden, ideal for families.
Victorian first‑floor flat with high ceilings and bay sash windows
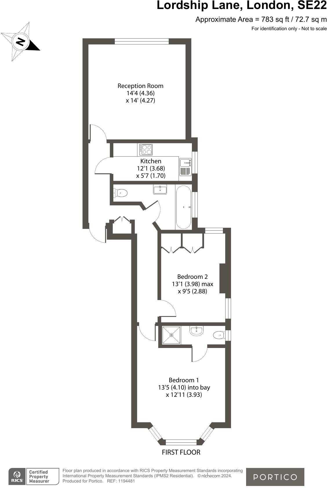
Nearly 800 sqft internal area; two double bedrooms, two bathrooms
Private terrace; roof terrace due for completion November 2025
Chain‑free sale; 105 years remaining on lease, ground rent £250
Gas central heating, double glazing; solid brick walls (likely uninsulated)
Good local schools; Dulwich shops, cafés and transport nearby
Average decorative condition — light refurbishment could add value
Leasehold ownership — check service charges and roof project arrangements
Set within a handsome red‑brick Victorian terrace on Lordship Lane, this first‑floor two‑bedroom apartment combines period character with practical living. High ceilings, bay sash windows and an original fireplace give generous proportions and strong natural light throughout the reception and principal bedroom. The well‑appointed separate kitchen and two bathrooms make the layout versatile for couples, young families or sharers.
A private terrace is already usable and a roof terrace is currently under construction, scheduled for completion in November 2025 — a compelling upside for outdoor space in Dulwich. The flat extends to around 780–800 sq ft, offers gas central heating and double glazing, and is sold chain‑free on a 105‑year lease with a modest ground rent of £250.
The location is one of the property’s main strengths: Lordship Lane’s cafés, shops and transport links sit close by, and several highly rated primary and secondary schools are within easy reach. Low crime, fast broadband and strong mobile signal add to the practical appeal for commuters and families.
Any buyer should note this is a leasehold conversion within a period building: the structural fabric is traditional solid brick (likely without cavity insulation) and some owners opt for light refurbishment to modernise finishes. The roof terrace works are in progress and viewing will show current condition; service/maintenance obligations and lease terms should be checked prior to offer.
2 bedroom flat for sale in Lordship Lane, East Dulwich, SE22 — £595,000 • 2 bed • 1 bath • 1038 ft²
2 bedroom apartment for sale in Beauval Road, East Dulwich, London, SE22 — £850,000 • 2 bed • 1 bath • 963 ft²
2 bedroom apartment for sale in Barry Road, East Dulwich, London, SE22 — £575,000 • 2 bed • 1 bath • 801 ft²
2 bedroom flat for sale in Friern Road, East Dulwich, SE22 — £575,000 • 2 bed • 1 bath • 808 ft²
2 bedroom apartment for sale in Landcroft Road, East Dulwich, London, SE22 — £700,000 • 2 bed • 2 bath • 833 ft²
2 bedroom apartment for sale in Overhill Road, East Dulwich, London, SE22 — £650,000 • 2 bed • 1 bath • 1138 ft²






















































