Freehold site with permission to build a family home in a quiet rural setting.
- Approved planning for a detached 4-bedroom house (ref 23/01234/FUL)
- Freehold plot in rural Lonriggend, ML6 7RS
- No identified flood risk
- Overgrown site; requires clearing and preparation
- Average mobile and broadband speeds
- Located in a very deprived area; resale risk possible
- Nearby wood, playground and quiet, wooded setting
- Financing options available for development
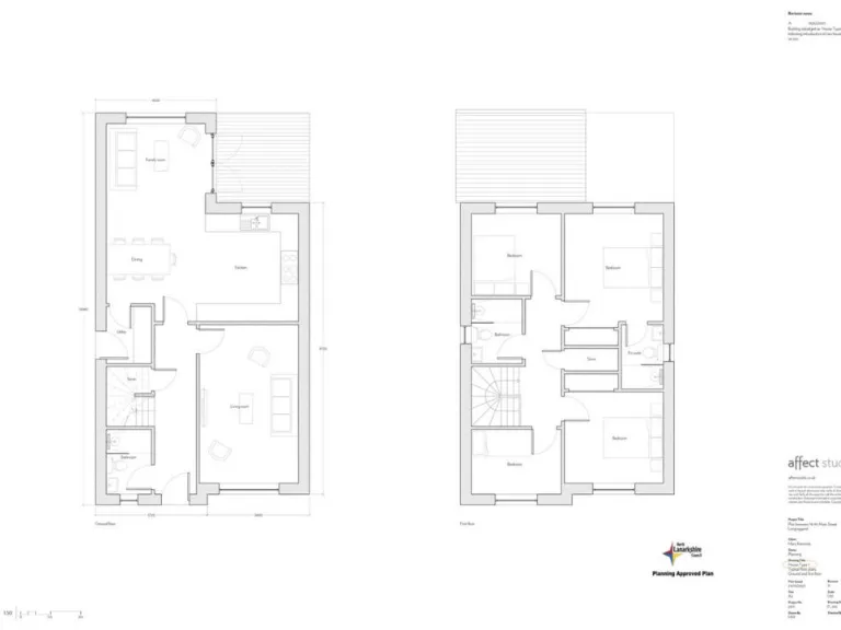
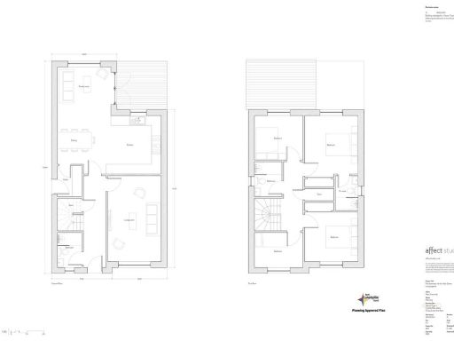
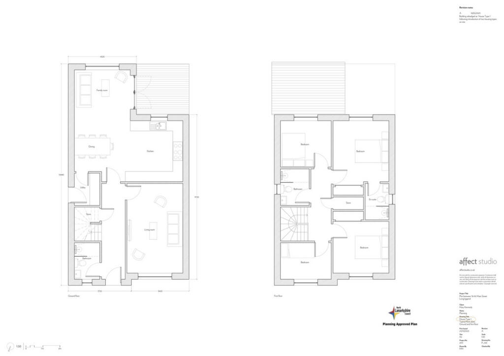
A cleared plot with approved planning for a detached four-bedroom house (ref: 23/01234/FUL) sits on Main Street in the rural Lonriggend area. The site is freehold, has no identified flood risk, and benefits from a quiet, wooded setting close to a small playground and local woodlands — a clear opportunity to build a family home tailored to your needs.
The land is currently overgrown and will require clearing and basic site preparation before construction. Services and detailed build costs are not included; average mobile and broadband speeds mean connectivity is adequate but not high-performance. The wider location is classified as remoter communities within a very deprived area, which may affect resale values and mortgage availability in some cases.
Approved planning reduces one major obstacle to development and could speed a build for an owner‑builder or small developer. Financing options are available to assist with development costs. This plot will suit a buyer comfortable managing a construction project who values a quiet, rural setting and is prepared for upfront site work and local market considerations.
Land for sale in High Street, Newarthill, Motherwell, ML1 — £85,000 • 1 bed • 1 bath
Land for sale in Curling Pond Lane, Longridge, EH47 — £110,000 • 1 bed • 1 bath
Plot for sale in Knoll Croft Road, Stane, ML7 — £95,000 • 1 bed • 1 bath
Land for sale in Afton Plots, Candie, FK1 — £160,000 • 1 bed • 1 bath
Land for sale in Land, At Upperton, Airdire, North Lanarkshire, ML6 7TT, ML6 — £330,000 • 4 bed • 2 bath
Land for sale in Plot of land to East of Victoria House, Lanrigg Road, Bathgate, EH47 — £55,000 • 1 bed • 1 bath


































