0.32 acre plot with full planning for a modern three-bed house — auction sale..
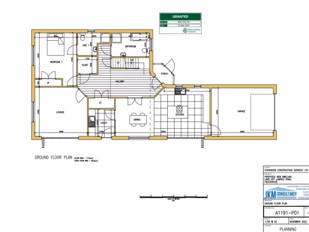
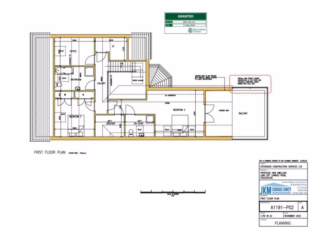
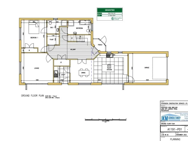
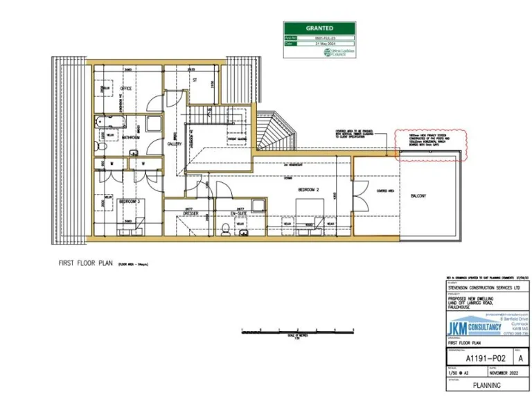
Full planning granted for two-storey detached three-bedroom house (ref 0501/FUL/23).
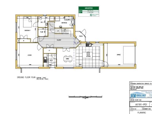
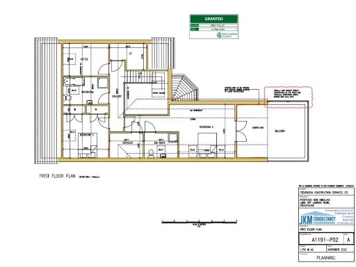
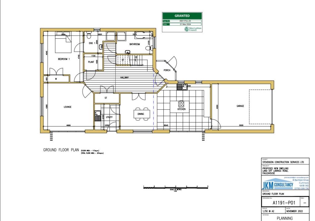
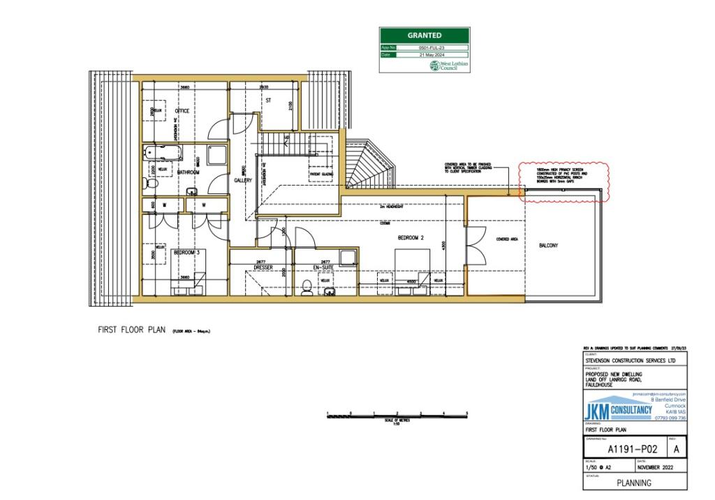
A rare development plot of about 0.32 acres with full planning permission (West Lothian Council ref 0501/FUL/23) for a modern two-storey detached three-bedroom house. The consented design includes ground-floor bedroom with ensuite, garage, first-floor gallery, office, balcony and two further bedrooms, giving clear construction scope for a single high-spec dwelling or a bespoke build. Excellent mobile signal and fast broadband support a connected home setup.
This lot will be sold at auction; purchasers should allow for the buyer’s premium (3.6% of the purchase price, minimum £3,600 inclusive of VAT) and factor in auction timescales. The plot is accessed from a private road and is described as very large with garden and garage parking. Full planning documents are available via the council planning portal using the provided reference.
Important considerations: the wider area is classified as very deprived and local services have not been tested — buyers must satisfy themselves on utilities, ground conditions and build costs before bidding. This is best suited to an experienced builder or developer comfortable with self-managed projects, or an investor seeking a planning-approved infill opportunity with good transport links to Edinburgh and Glasgow.
4 bedroom detached house for sale in Breichwater Place, Fauldhouse (The Carrock (CC42S)) , EH47 — £80,000 • 4 bed • 2 bath • 1027 ft²
Plot for sale in Plot of Land, South end of Eastfield Road, Fauldhouse, EH47 — £125,000 • 1 bed • 1 bath
Land for sale in Lanrigg Road, Fauldhouse, EH47 — £95,000 • 3 bed • 1 bath
Land for sale in Willowbrae, Fauldhouse, EH47 — £95,000 • 1 bed • 1 bath • 9741 ft²
Plot for sale in Development Site At Limefield Mains, Limefield Mains, Polbeth, West Calder, EH55 — £600,000 • 1 bed • 1 bath
Land for sale in Plot at Bridge End, Shotts, Lanarkshire, ML7 — £15,000 • 1 bed • 1 bath






















































