Two freehold plots with planning consent for two 3-bed homes — ready for redevelopment.
- Two adjacent plots sold together as a single lot at £110,000
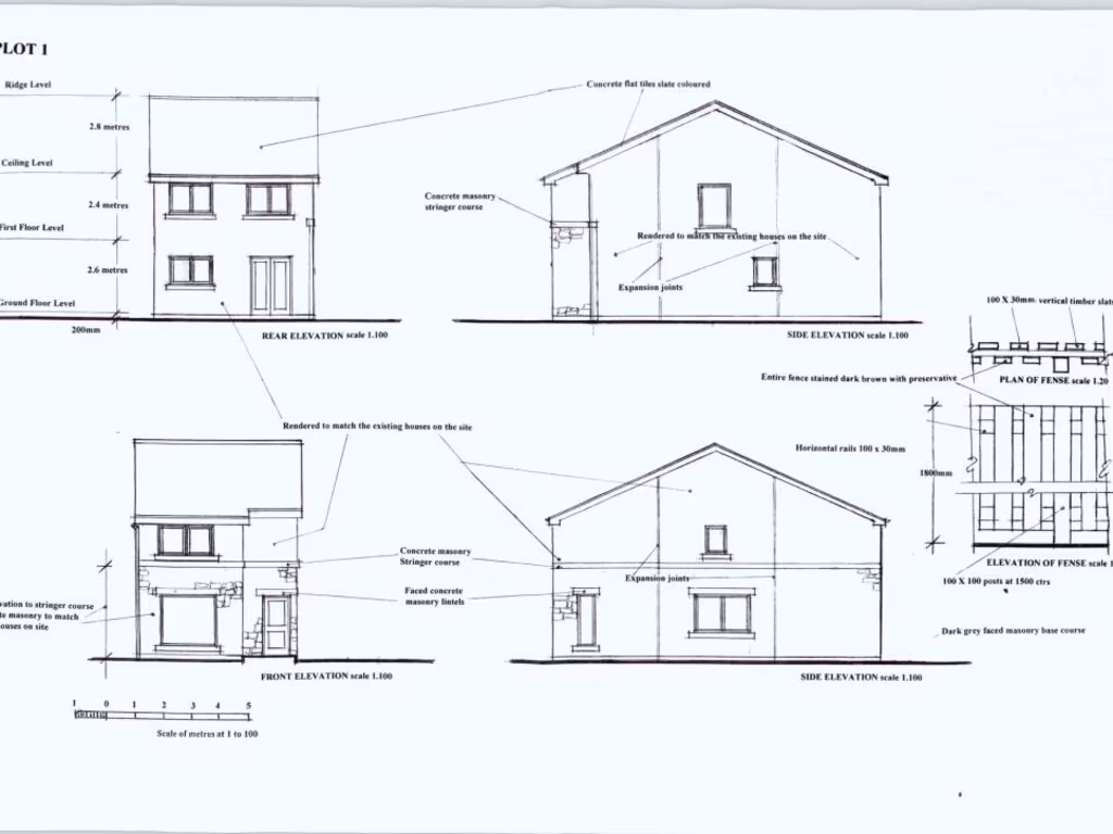
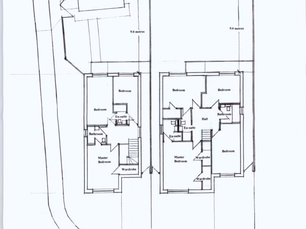
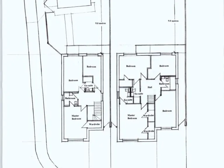
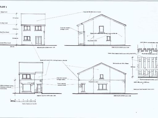
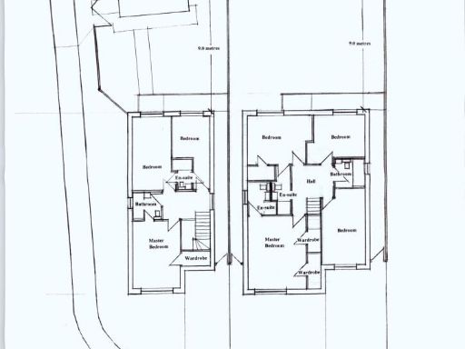
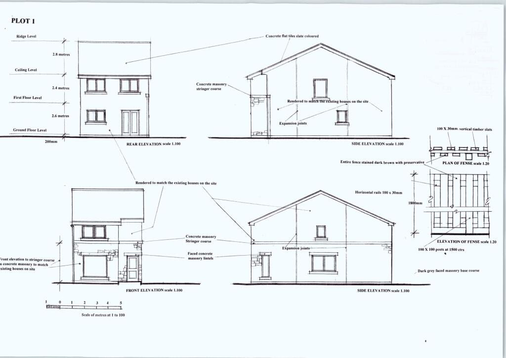
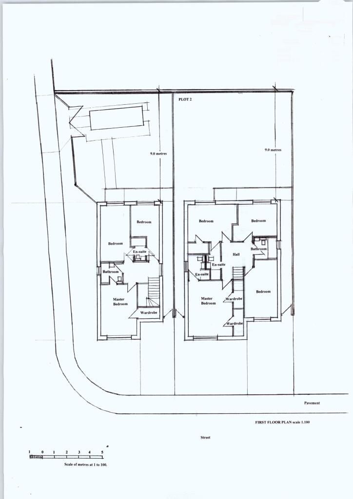
- Planning granted Mar 2022 for 2 x 3-bed detached homes (Ref. 0421/FUL/19)
- Services available at the roadside for straightforward connections
- Site is derelict and overgrown; clearance and preparation required
- Previous 4-bed permission lapsed; rely on current consent or reapply
- Freehold tenure; no flood risk recorded
- Excellent mobile signal and fast broadband on site
- Local area classed as very deprived; may affect resale/rental demand
Two adjacent plots being sold together on Curling Pond Lane present a clear development opportunity at a fixed price of £110,000. Planning permission (Mar 2022, Ref. 0421/FUL/19) was granted for two detached three-bedroom homes, and services are available at the roadside, simplifying connection costs. The site sits on the edge of open countryside in a comfortable suburban setting with excellent mobile signal and fast broadband — useful for modern buyers or rental appeal.
The land is currently derelict and overgrown and will need clearance and basic site preparation before construction. The previous larger four-bedroom permission has lapsed, so buyers should rely on the current live permission or lodge fresh applications if different house layouts are preferred. Tenure is freehold and flood risk is none, which reduces some development constraints.
Be aware the local area records higher deprivation and an “endeavouring social renters” classification, which may influence long-term resale values and target market for finished homes. The plots suit a developer, builder, or self-builder who can manage site clearance and build to the approved scheme (or apply for amendments). The combination of planning in place, roadside services and strong connectivity makes this a straightforward brownfield redevelopment prospect, but it requires upfront capital and active project management.
Land for sale in Afton Plots, Candie, FK1 — £160,000 • 1 bed • 1 bath
Land for sale in Longford Crofts, West Calder, EH55 — £250,000 • 1 bed • 1 bath • 3659 ft²
Plot for sale in Knoll Croft Road, Stane, ML7 — £95,000 • 1 bed • 1 bath
Land for sale in Longford Crofts, West Calder, EH55 — £275,000 • 3 bed • 1 bath • 2700 ft²
Plot for sale in 54 Torbane Drive Whitburn, EH47 — £45,000 • 1 bed • 1 bath
Land for sale in Plot of land to East of Victoria House, Lanrigg Road, Bathgate, EH47 — £55,000 • 1 bed • 1 bath


























