Central period property with garden and garage — ideal for renovation investors.
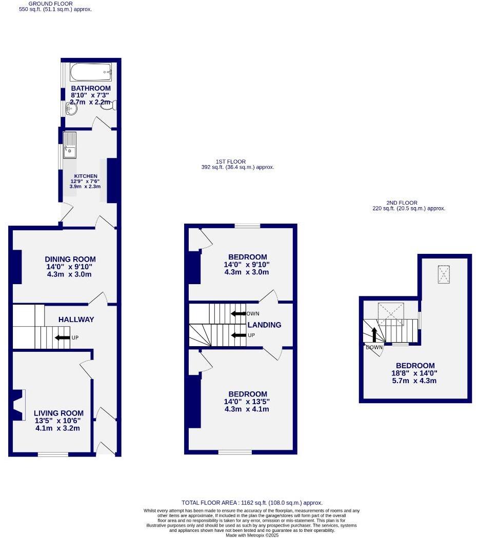
- Three-storey Victorian mid-terrace with original period features
- Large south-facing rear garden plus store/garage and parking
- Three double bedrooms across first and second floors
- Requires full refurbishment; dated kitchen and bathroom
- EPC rating G; significant energy-efficiency work likely needed
- Solid brick walls assumed with no insulation (upgrade recommended)
- Very slow broadband speeds; mobile signal excellent
- High local crime rates and average area deprivation
A three-storey Victorian terraced house on Monkgate, a short walk from York city centre and the Minster. The property retains period features such as high ceilings, bay window and fireplaces, and benefits from a long, private south-facing rear garden with a separate store/garage and parking — a rare find so close to the city. Its central location places shops, theatres, supermarkets and several good schools within easy reach.
The house is sold freehold but requires full refurbishment throughout: dated mid-20th-century kitchen, worn bathroom, and general modernisation needed. EPC rating G and assumed solid brick walls with no insulation mean significant energy-efficiency upgrades will be required. Broadband speeds are very slow and crime levels in the area are high; these are material factors for both occupiers and lettings.
For investors or buyers seeking a renovation project, the property offers clear potential: three double bedrooms across two upper floors, good room proportions with high ceilings, and a sizeable rear plot that could be landscaped or improved to add value. Buyers should budget for heating, insulation, wiring updates and full cosmetics; survey recommended to confirm any structural or hidden issues.
This is a practical city-centre opportunity for someone prepared to invest in upgrades to unlock period charm and rental or resale potential. Families will appreciate proximity to a number of well-rated schools, while investors can target strong central demand — but factor in remediation costs and slower connectivity when assessing returns.
2 bedroom terraced house for sale in Upper Newborough Street, York, YO30 — £220,000 • 2 bed • 1 bath • 682 ft²
2 bedroom terraced house for sale in Nunmill Street, York, YO23 1NU, YO23 — £390,000 • 2 bed • 2 bath • 800 ft²
3 bedroom terraced house for sale in Wigginton Terrace, York, YO31 — £435,000 • 3 bed • 2 bath • 1513 ft²
3 bedroom terraced house for sale in Emerald Street, The Groves, York, YO31 8LQ, YO31 — £350,000 • 3 bed • 1 bath • 1192 ft²
3 bedroom terraced house for sale in Barbican Road, York, YO10 — £420,000 • 3 bed • 1 bath
3 bedroom terraced house for sale in Nicholas Street, York, YO10 — £220,000 • 3 bed • 1 bath • 1166 ft²






















































































