City-edge three-bedroom home with period charm and garage.
Victorian mid-terrace with original period features
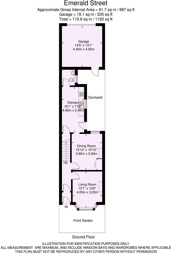
Two reception rooms; modern fitted kitchen in rear extension
Two double bedrooms plus single bedroom/study
Contemporary first-floor tiled bathroom
Paved rear courtyard and useful garage with roller door
Small plot; limited private outdoor space
Solid brick walls likely without cavity insulation (assumed)
Chain free, freehold, close to city centre and hospital
A bright, characterful Victorian mid-terrace offering two reception rooms, three bedrooms and a useful garage, located between Haxby Road and Huntington Road. Original features such as mosaic hallway tiles, stripped pine doors, picture rails and a bay window give the house strong period appeal while a modern rear extension provides a fitted kitchen and contemporary first-floor bathroom.
The layout suits first-time buyers or small families seeking city living close to York city centre, York Hospital and good local schools. Low-maintenance outdoor space is provided by a paved rear courtyard with garage access; on-street parking is available to the front. The property is offered freehold and with no onward chain.
Practical points to note: the house sits on a small plot so outdoor amenity is limited, and the solid brick walls are likely uninsulated (as built). While the kitchen and bathroom are modern, further updating or insulation improvements may be desired to meet long-term energy or space expectations.
2 bedroom terraced house for sale in Levisham Street, York,YO10 4BL, YO10 — £300,000 • 2 bed • 1 bath • 726 ft²
3 bedroom terraced house for sale in Wigginton Terrace, York, YO31 — £435,000 • 3 bed • 2 bath • 1513 ft²
2 bedroom terraced house for sale in Huntington Road, York YO31 8RD, YO31 — £425,000 • 2 bed • 1 bath • 1015 ft²
3 bedroom terraced house for sale in Burton Stone Lane, York YO30 6EX, YO30 — £270,000 • 3 bed • 1 bath • 914 ft²
3 bedroom terraced house for sale in Frances Street, York, YO10 — £335,000 • 3 bed • 1 bath • 887 ft²
3 bedroom terraced house for sale in Barbican Road, York, YO10 — £420,000 • 3 bed • 1 bath














































































