Ideal fixer offering walking-distance amenities and strong uplift potential.
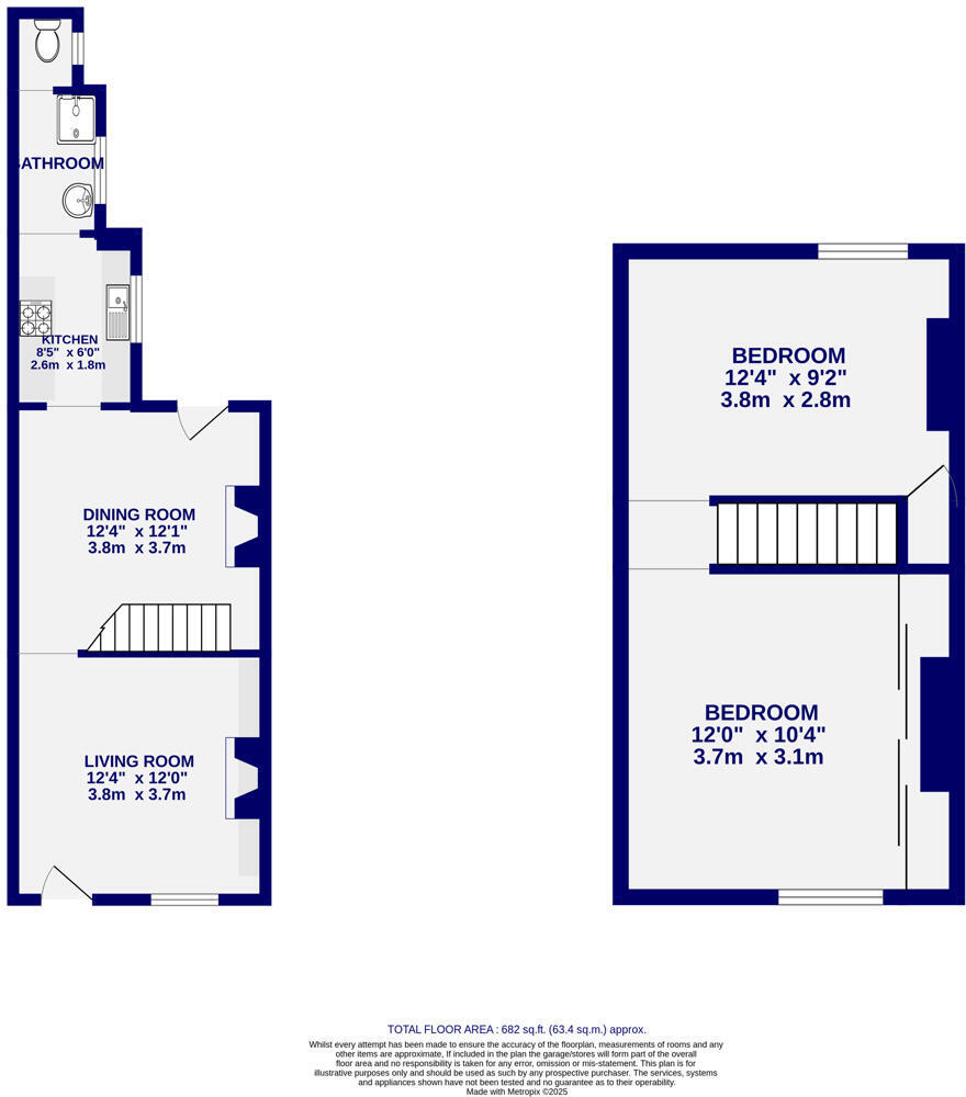
Two double bedrooms with practical, period layout
Requires full modernisation to kitchen, bathroom and decoration
Vacant possession and no onward chain
Garage to rear — rare central storage/parking asset
Small rear courtyard; no front garden, opens onto pavement
Local crime levels are above average — consider security costs
Excellent mobile signal and fast broadband; flood risk low
Council Tax Band B; compact plot, average overall size
This mid-terrace Victorian house on Upper Newborough Street offers a rare central-York opportunity for buyers willing to renovate. The property is offered chain free with vacant possession and includes a garage accessed from the rear — an unusual asset for its central location.
Internally the layout is practical: a front living room with a feature fireplace, separate dining room, fitted kitchen, ground-floor shower room and two double bedrooms above. The home requires modernisation throughout — kitchens, bathroom, decoration and likely services will need updating — so bring a clear budget for works.
Outside there is a small rear courtyard and garage; there is no front garden and the house sits directly onto the pavement with on-street parking. EPC is to be confirmed; Council Tax Band B. The location is within easy walking distance of York city centre, local amenities and a range of schools, making the house suited either to an investor targeting central rental demand or a buyer seeking a project with uplift potential.
Buyers should note practical drawbacks: the property needs renovation, the plot is compact, and recorded local crime levels are above average. Broadband and mobile signal are strong, flood risk is low and the wider area is affluent with a cosmopolitan, mixed local population.
2 bedroom terraced house for sale in Charlton Street, York, YO23 — £285,000 • 2 bed • 1 bath • 638 ft²
2 bedroom terraced house for sale in Cromer Street, Off Bootham, York, YO30 — £310,000 • 2 bed • 1 bath • 931 ft²
2 bedroom terraced house for sale in Cromer Street, Off Burton Stone Lane, York YO30 6DQ, YO30 — £220,000 • 2 bed • 1 bath • 875 ft²
2 bedroom terraced house for sale in Scarborough Terrace, York, YO30 — £250,000 • 2 bed • 1 bath • 896 ft²
2 bedroom terraced house for sale in Newborough Street, York, YO30 — £235,000 • 2 bed • 1 bath • 656 ft²
2 bedroom terraced house for sale in Nunmill Street, York, YO23 1NU, YO23 — £390,000 • 2 bed • 2 bath • 800 ft²


























































