Large garden and no onward chain — ideal for growing families.
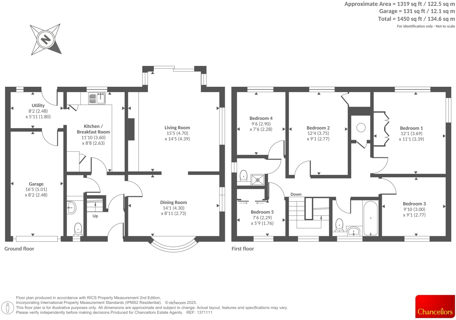
Five bedrooms—flexible layout for family living or reconfiguration
Large rear garden, private driveway and single garage
Walking distance to Camberley town centre and several Good-rated schools
Sold with no onward chain—quicker completion possible
Dated kitchen, bathrooms and carpets; refurbishment likely required
Double glazing installed post-2002; mains gas boiler and radiators
Built circa 1967–1975; survey advised to check services and structure
Council tax above average for the local area
This five-bedroom detached family house in Camberley sits within walking distance of the town centre and several well-rated primary and secondary schools. The property offers flexible living with a separate kitchen, utility room, downstairs WC and two bathrooms — useful for a growing household.
The plot includes a large rear garden, driveway and single garage, plus double glazing and gas central heating via a boiler. The house is sold with no onward chain, presenting a straightforward purchase for buyers wanting to move quickly or start a refurbishment project.
The interior shows signs of age and would benefit from updating — carpets, kitchen and bathrooms are dated and there is clear scope to reconfigure or modernise to add value. Council tax is above average for the area, and the built era (late 1960s–1970s) means buyers should check services and structural details during survey.
Overall, this is a practical family opportunity for those seeking space and a large garden in a convenient Camberley location, with good potential for improvement and value uplift.
5 bedroom detached house for sale in Pans Gardens, Camberley, Surrey, GU15 — £695,000 • 5 bed • 2 bath • 2232 ft²
5 bedroom detached house for sale in Stockwood Rise, Camberley, Surrey, GU15 — £850,000 • 5 bed • 2 bath • 2044 ft²
5 bedroom semi-detached house for sale in Portesbery Road, Camberley, GU15 — £795,000 • 5 bed • 3 bath • 2015 ft²
5 bedroom detached house for sale in Clarewood Drive, Camberley, Surrey, GU15 — £1,350,000 • 5 bed • 3 bath • 2444 ft²
5 bedroom detached house for sale in Beaufront Road, Camberley, GU15 — £1,175,000 • 5 bed • 3 bath • 2871 ft²
4 bedroom link detached house for sale in York Road, Camberley, Surrey, GU15 — £620,000 • 4 bed • 2 bath • 1842 ft²


















































































