Spacious character home for families seeking rural living with commuter links.
Three double bedrooms including principal with dressing area and en‑suite.
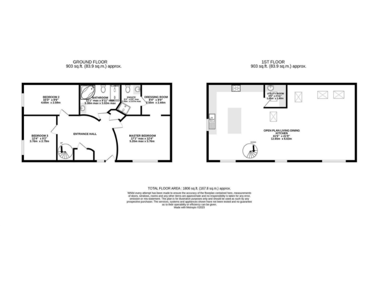
Tucked down a private tree‑lined drive, this converted barn at Over Tabley Hall Farm blends rural character with generous, flexible living space. The open-plan first-floor kitchen, dining and living room showcases high ceilings, exposed beams and large windows that flood the room with light — ideal for family life and entertaining. Three double bedrooms include a principal suite with dressing area and en‑suite; designated parking for two and a private lawned garden complete the plot.
Practical considerations are clear and important. Heating is via an LPG boiler (off‑mains fuel), broadband speeds are very slow, and the property sits in a medium flood‑risk zone. Council tax is described as expensive and local crime levels are reported as high — these factors should be weighed against the rural setting and commuter convenience.
The conversion is sympathetically finished with solid‑brick walls, internal insulation and double glazing (installation date unknown). Communal gardens are well maintained and the home is offered chain free on a freehold tenure. Its large overall footprint (approximately 1,806 sq ft) and village‑edge location suit a family seeking period character with direct links to Knutsford and the M6/M56, while buyers should budget for connectivity improvements and review flood and security protection options.
3 bedroom semi-detached house for sale in Over Tabley Hall Farm, Old Hall Lane, Over Tabley, Knutsford, WA16 — £795,000 • 3 bed • 2 bath • 1806 ft²
3 bedroom barn conversion for sale in Dutton Hall Court, Northwich Road, Dutton, Warrington, WA4 — £400,000 • 3 bed • 2 bath • 1323 ft²
3 bedroom barn conversion for sale in Sudlow Lane, Tabley, WA16 — £1,275,000 • 3 bed • 3 bath • 2254 ft²
4 bedroom barn conversion for sale in Hollow Lane, Kingsley, WA6 — £750,000 • 4 bed • 2 bath • 1733 ft²
5 bedroom semi-detached house for sale in West Hall Court, High Legh, Knutsford, WA16 — £875,000 • 5 bed • 3 bath • 1991 ft²
5 bedroom barn conversion for sale in Marsh Lane Oak Bank Farm, Lower Whitley, WA4 — £1,100,000 • 5 bed • 4 bath • 2600 ft²


























































