Bright two-bedroom home with private terrace near Hackney Central transport.
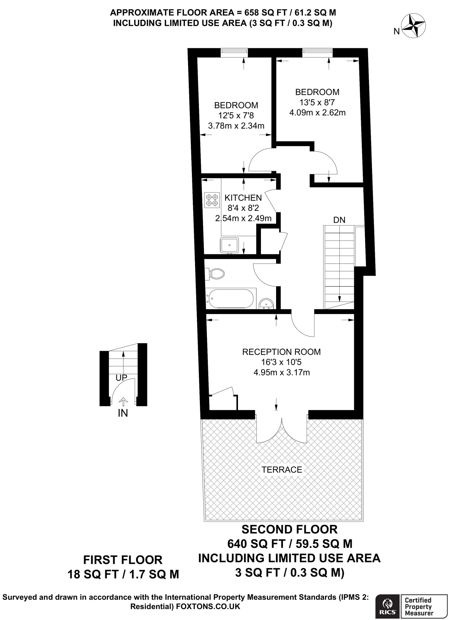
Second-floor two-bedroom flat with private terrace
This second-floor two-bedroom flat offers bright, well-proportioned rooms and a private terrace in the heart of Hackney Central. The reception room receives good natural light and flows from a separate integrated kitchen, making everyday living and entertaining straightforward. At 658 sq ft the layout is practical for a first home or buy-to-let, with two generous bedrooms and a stylish bathroom.
Location is a clear strength: Mare Street shops, cafes and transport links are moments away, and fast broadband and excellent mobile signal suit home-working or streaming. There are several highly rated primary and secondary schools within easy reach.
Be clear about the main considerations: the property is leasehold (length and charges not specified) and has a single bathroom for two bedrooms. The wider area records higher crime and relative deprivation, which may affect long-term resale or rental demand for some buyers. Overall, this is a well-presented, modern flat offering straightforward city living and good connectivity for buyers who prioritise location and immediate usability.
2 bedroom flat for sale in Hackney Road, Columbia Road, London, E2 — £625,000 • 2 bed • 2 bath • 715 ft²
2 bedroom flat for sale in Sylvester Path, Hackney, London, E8 — £400,000 • 2 bed • 1 bath • 704 ft²
1 bedroom flat for sale in Hackney Road, Columbia Road, London, E2 — £525,000 • 1 bed • 1 bath • 581 ft²
2 bedroom apartment for sale in Bocking Street, London, E8 — £640,000 • 2 bed • 1 bath • 742 ft²
2 bedroom apartment for sale in Hackney Road, Hackney, E2 — £625,000 • 2 bed • 2 bath • 602 ft²
2 bedroom flat for sale in Sylvester Path, London Fields, E8 — £500,000 • 2 bed • 1 bath • 650 ft²






































































